Saguaro Plan
Ready to build
1543 N Camden Dr, Florence AZ 85132
Home by D.R. Horton
Last updated 1 day ago
The Price Range displayed reflects the base price of the homes built in this community.
You get to select from the many different types of homes built by this Builder and personalize your New Home with options and upgrades.
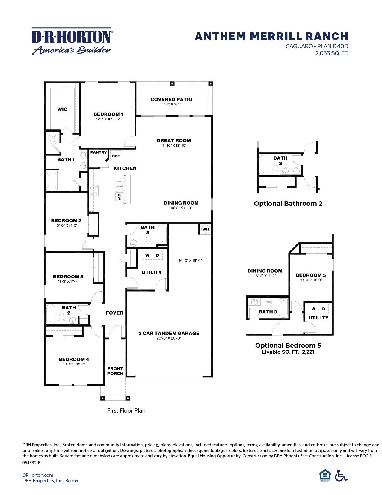
4 BR
3 BA
3 GR
2,055 SQ FT
Claim this listing to update information, get access to exclusive tools and more!

Floorplan 0 1/1
Overview
1 Story
2055 Sq Ft
3 Bathrooms
3 Car Garage
4 Bedrooms
Single Family
Saguaro Plan Info
This floorplan offers five bedrooms and three bathrooms. With the option for a three-car garage, this home provides plenty of space for both vehicles and storage. Upon entering through the foyer, you'll be greeted by the kitchen and living room layout that flows to an 18-foot-wide covered back patio! In addition to the living room space, the 4 bedrooms are incredibly spacious, with the primary bedroom featuring a walk-in closet for ample storage of all your favorite items.
Floor plan center
View floor plan details for this property.
- Floor Plans
- Exterior Images
- Interior Images
- Other Media
Neighborhood
Community location & sales center
1543 N Camden Dr
Florence, AZ 85132
1543 N Camden Dr
Florence, AZ 85132
888-355-8096
Schools near Anthem at Merrill Ranch
- Florence Unified School District
- Florence High School
Actual schools may vary. Contact the builder for more information.
Amenities
Home details
Ready to build
Build the home of your dreams with the Saguaro plan by selecting your favorite options. For the best selection, pick your lot in Anthem at Merrill Ranch today!
Nearby schools
Florence Unified School District
High school. Grades 9 to 12.
- Public school
- Teacher - student ratio: 1:18
- Students enrolled: 796
1000 S Main St, Florence, AZ, 85132
520-866-3560
Actual schools may vary. We recommend verifying with the local school district, the school assignment and enrollment process.
Neighborhood amenities
Safeway
0.76 mile away
3325 N Hunt Hwy
Pinal Food Market
1.40 miles away
50 N Main St
Walmart Supercenter
4.07 miles away
1695 N Arizona Blvd
Safeway
4.46 miles away
1449 N Arizona Blvd
Coolidge Unified School District Food
5.18 miles away
600 W Northern Ave
Walmart Bakery
4.07 miles away
1695 N Arizona Blvd
Nana's Coffee Shoppe
4.41 miles away
1491 N Arizona Blvd
Icing on the Cake
8.00 miles away
1999 E Dust Devil Dr
Arizona Homescapes
0.51 mile away
7624 W Millerton Way
Subway
0.71 mile away
3235 N Hunt Hwy
Chens Chinese Bistro
0.74 mile away
3281 N Hunt Hwy
McDonald's
0.81 mile away
3423 N Hunt Hwy
Valentinos Eatery
0.82 mile away
3385 N Hunt Hwy
Starbucks
0.76 mile away
3325 N Hunt Hwy
Station Coffee Co
1.40 miles away
130 N Main St
Starbucks
4.46 miles away
1449 N Arizona Blvd
Nana's Coffee Shoppe
5.70 miles away
235 W Coolidge Ave
Starbucks
8.66 miles away
542 E Hunt Hwy
Faith's Creations
1.40 miles away
244 N Main St
Miah & Elliott LLC
3.17 miles away
24014 N Desert Dr
Walmart Supercenter
4.07 miles away
1695 N Arizona Blvd
Family Dollar
5.21 miles away
555 N Arizona Blvd
Mae New Age Boutique
5.25 miles away
228 E Broadway Ave
River Bottom Grill
1.40 miles away
2501 N Highway 79
The Gym Grill & Bar
6.67 miles away
2510 E Hunt Hwy
Biscuits Cafe
8.88 miles away
270 E Hunt Hwy
Please note this information may vary. If you come across anything inaccurate, please contact us.
Builder details
D.R. Horton
In 1978, D.R. Horton broke ground on our first home in Fort Worth, Texas. Since that day, the company has defined its success not by bricks and mortar, but by the satisfaction of the families that make our houses their homes. Our foundation is a single, guiding principle: a value-first dedication to the individual needs of each and every one of our nation’s homebuyers.
From first-time homebuyers to empty nesters, our family of brands provides a home for every stage in life. Our highly-trained, market experts are where you want to live, from New Jersey to Hawaii, providing unique, personalized services tailored to your individual needs. But the real value comes from the quality construction we put into every home, and the peace of mind that comes with a premium-backed warranty from America’s Number One Homebuilder.
We’ve come a long way, and while more people choose our family of brands over any other builder in the country, we never forget the most important thing of all – the families that choose us for their place to call home.
So continue to live out those dreams, America, and know we’ll be here for you every step of the way.
More new homes in Florence, Arizona
Saguaro Plan by D.R. Horton
saved to favorites!
To see all the homes you’ve saved, visit the My Favorites section of your account.
Discover More Great Communities
Select additional listings for more information
Way to Go!
An agent will be in contact soon!
