Savannah Plan
Ready to build
3940 Prices Fork Road, Blacksburg VA 24060
Home by Eagle Construction of VA, LLC

Last updated 2 days ago
The Price Range displayed reflects the base price of the homes built in this community.
You get to select from the many different types of homes built by this Builder and personalize your New Home with options and upgrades.
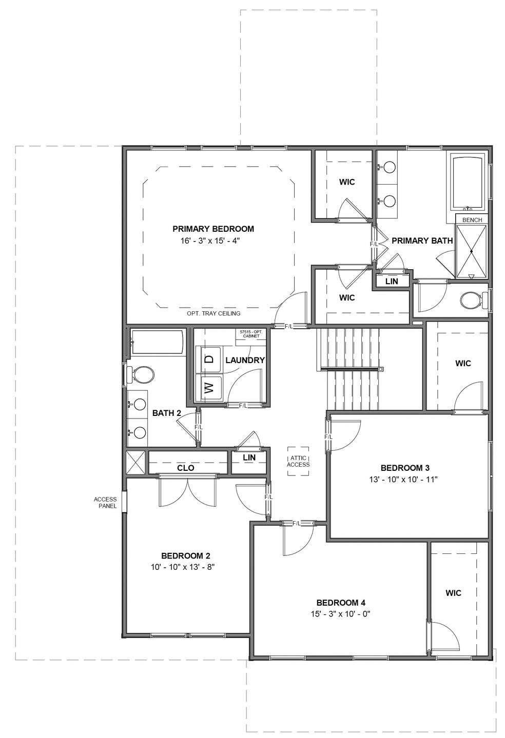
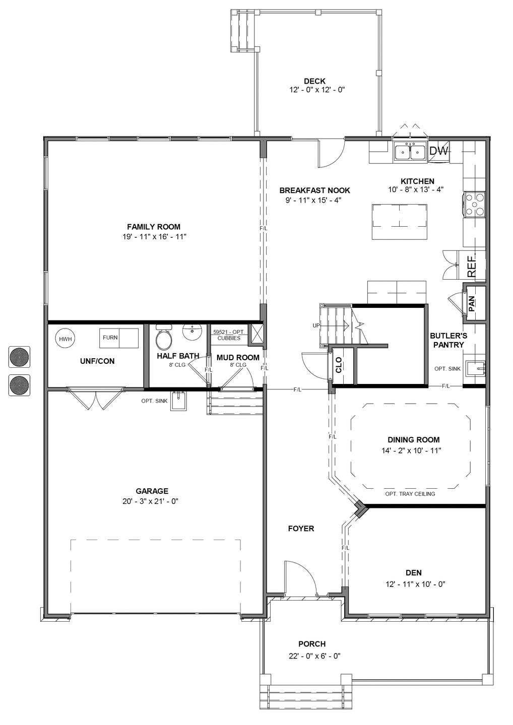
4 BR
2.5 BA
2 GR
2,842 SQ FT

Exterior 1/26
Overview
1 Half Bathroom
2 Stories
Primary Bed Upstairs
Single Family
Savannah Plan Info
Southern hospitality meets modern sensibilities with the Savannah, a 2-story plan offering 4 bedrooms, 2.5+ baths, a 2-car garage and over 2,800 square feet of tranquility ready for personalization. Step into the foyer and ambiance of home as a front study and dining room greet you with open arms. Unleash your inner chef in a dream kitchen with acres of cabinets and large island offering scenic views of the breakfast nook and family room beyond. Let the good life begin—and continue upstairs in a primary suite that caters to your every need with its luxurious dual-sink bath and double walk-in closets. 3 additional bedrooms, a full bath, and convenient second floor laundry ensure plenty of space for one and all. Want more? You got it, with a host of options that includes extended living space, a Florida Room, and third full bath upstairs.
Floor plan center
View floor plan details for this property.
- Floor Plans
- Exterior Images
- Interior Images
- Other Media
Explore custom options for this floor plan.
- Choose Option
- Include Features
Neighborhood
Community location & sales center
3940 Prices Fork Road
Blacksburg, VA 24060
3940 Prices Fork Road
Blacksburg, VA 24060
888-857-3753
If traveling US-460 W, take the Prices Fork exit and merge onto Prices Fork Road. You will get to a traffic circle about 2.5 miles down the road - keep straight through the traffic circle and The Preserve will be just ahead on the right.From the Virginia Tech campus, The Preserve is approximately 4 miles down Prices Fork RoadIf traveling from the Radford or Dublin area, head east on VA-114/Peppers Ferry Rd NW. Take a left onto State Rte 659/Prices Fork Rd. Follow Prices Fork for about 4 miles and The Preserve will be on the left.
Nearby schools
Montgomery County Public Schools
Blacksburg High School
High school. Grades 9 to 12.
Public school
Teacher - student ratio: 1:15
Students enrolled: 1321
540-951-5706
3401 Bruin Ln, Blacksburg, VA, 24060
Blacksburg Middle School
Middle school. Grades 6 to 8.
Public school
Teacher - student ratio: 1:12
Students enrolled: 946
540-951-5800
3109 Prices Fork Rd, Blacksburg, VA, 24060
Prices Fork Elementary School
Elementary school. Grades PK to 5.
Public school
Teacher - student ratio: 1:13
Students enrolled: 440
540-951-5834
4021 Prices Fork Rd, Blacksburg, VA, 24060
GreatSchools ratings are provided by GreatSchools.org and are for reference only. Ratings may not be available for all schools. Please verify school assignments and details with the local school district.
Amenities
Home details
Ready to build
Build the home of your dreams with the Savannah plan by selecting your favorite options. For the best selection, pick your lot in The Preserve Single Family Homes today!
Community & neighborhood
Local points of interest
- Views
Health and fitness
- Trails
- Volleyball
- Basketball
Community services & perks
- Playground
- Park
Neighborhood amenities
Food Lion
1.56 miles away
801 Hethwood Blvd
Hethwood Market
2.02 miles away
820 Heather Dr
Kroger
3.06 miles away
903 University City Blvd
Little Market
4.13 miles away
895 Peppers Fry Rd NW
Kroger
4.43 miles away
1322 S Main St
sweetFrog
3.04 miles away
801 University City Blvd
Kroger Bakery
3.06 miles away
903 University City Blvd
Eats Natural Foods Co-op
3.79 miles away
708 N Main St
GNC
4.44 miles away
782 New River Rd
Annie Kay's Main St. Market
4.59 miles away
1531 S Main St
Thyme & Table
0.57 mile away
4237 Prices Fork Rd
Hunt Brothers Pizza
0.77 mile away
4351 Prices Fork Rd
Grumpy Pig Barbeque
0.81 mile away
3500 Prices Fork Rd
On-Site Culinary Solutions LLC
1.00 miles away
2090 Brooksfield Rd
Hethwood Market
2.02 miles away
820 Heather Dr
Himalayan Curry Cafe
3.06 miles away
781 University City Blvd
Tropical Smoothie Cafe
3.12 miles away
896 Prices Fork Rd
Starbucks
3.16 miles away
880 University City Blvd
Jamba
3.55 miles away
430 Old Turner St
Next Door Bake Shop
3.63 miles away
460 Turner St NW
Bonomo's Inc
3.16 miles away
860 University City Blvd
Best of NRV Bridals & Events
3.70 miles away
210 Prices Fork Rd
310 Rosemont
3.95 miles away
208 N Main St
Fringe Benefit
3.95 miles away
105 N Main St
Underground Printing Blacksburg
3.99 miles away
220 S Main St
Macado's
3.16 miles away
922 University City Blvd
Buffalo Wild Wings
3.62 miles away
460 Turner St NW
Blacksburg Wine Lab
3.68 miles away
223 Gilbert St
The Milk Parlor
3.86 miles away
211 Draper Rd NW
Pk's Bar & Grill
3.91 miles away
432 N Main St
Please note this information may vary. If you come across anything inaccurate, please contact us.
There are no ordinary moments. Moments are winks in time that capture the magic of everyday life and bring us closer to the people, places and things that matter. Building homes doesn't start with plans, it begins with people - working together to create opportunities for life's moments to happen, and inspiring us to make the most of every one. At Eagle, we believe there are no ordinary moments, but countless extraordinary ones. Ones we inspire. Ones we create. Ones we share. At Eagle, we are committed to the craft, our culture, the community and above all, our customers. As one of Virginia's most trusted builders since 1984, our commitment is surpassed only by our passion for crafting experiences that transcend construction. We take pride and ownership in everything we do by:
Take the next steps toward your new home
Savannah Plan by Eagle Construction of VA, LLC
saved to favorites!
To see all the homes you’ve saved, visit the My Favorites section of your account.
Discover More Great Communities
Select additional listings for more information
We're preparing your brochure
You're now connected with Eagle Construction of VA, LLC. We'll send you more info soon.
The brochure will download automatically when ready.
Brochure downloaded successfully
Your brochure has been saved. You're now connected with Eagle Construction of VA, LLC, and we've emailed you a copy for your convenience.
The brochure will download automatically when ready.
Way to Go!
You’re connected with Eagle Construction of VA, LLC.
The best way to find out more is to visit the community yourself!