St. Andrews Basement Plan
Ready to build
8700 Centerline Drive, Chesterfield VA 23832
Home by Lennar

Last updated 1 day ago
The Price Range displayed reflects the base price of the homes built in this community.
You get to select from the many different types of homes built by this Builder and personalize your New Home with options and upgrades.
4 BR
3.5 BA
2 GR
3,580 SQ FT

Elevation CWT - St Andrews Exterior Rendering CTS 1/56
Overview
1 Half Bathroom
2 Car Garage
2 Stories
3 Bathrooms
3580 Sq Ft
4 Bedrooms
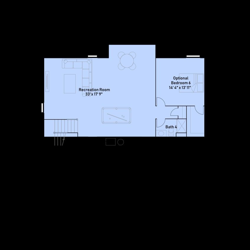
Basement
Dining Room
Family Room
Primary Bed Upstairs
Single Family
St. Andrews Basement Plan Info
The first level of this two-story home showcases a generous open floorplan shared between the Great Room, kitchen and breakfast area. The bright and open living room is located just off the entryway, while at the rear of the home is a private home office ideal for home schooling or remote work. Upstairs, a loft provides additional shared living space, surrounded by four secondary bedrooms and an expansive owner's suite with a sitting room.
Floor plan center
View floor plan details for this property.
- Floor Plans
- Exterior Images
- Interior Images
- Other Media
Neighborhood
Community location & sales center
8700 Centerline Drive
Chesterfield, VA 23832
8700 Centerline Drive
Chesterfield, VA 23832
Schools near Harpers Mill - Executive Collection
- Chesterfield County Public Schools
Actual schools may vary. Contact the builder for more information.
Amenities
Home details
Ready to build
Build the home of your dreams with the St. Andrews Basement plan by selecting your favorite options. For the best selection, pick your lot in Harpers Mill - Executive Collection today!
Community & neighborhood
Local points of interest
- Greenbelt
Utilities
- Electric Dominion Energy (866) 366-4357
- Gas Columbia Gas (800) 543-8911
- Telephone Verizon (833) 837-4966
- Water/wastewater Chesterfield County Utilities (804) 748-1271
Social activities
- Club House
Health and fitness
- Pool
- Trails
- Soccer
Community services & perks
- HOA fees: Unknown, please contact the builder
- Playground
- Park
Founded in 1954, Lennar is one of the nation's leading builders of quality homes for all generations, with more than one million new homes built for families across America. We build in some of the nation’s most popular cities, and our communities cater to all lifestyles and family dynamics, whether you are a first-time or move-up buyer, multigenerational family, or Active Adult. Lennar has reimagined the homebuying experience by including the most desired home features at no extra cost to you, from smart home technology to energy-conscious features. Our simplified homebuying experience offers Everything’s Included® at the best value, a myLennar homeownership account, and our family companies handle mortgage, title and insurance needs to ensure a smooth closing. Lennar’s Next Gen® - The home within a home® - offers a private suite that provides all the essentials multigenerational families need to work, learn, create or have a sense of independence. Whether you need a space for family, wellness, work or learning, you’ll have all the essentials you need with this suite of possibilities. We hold the highest level of integrity for our customers, associates, shareholders, trade partners, community, and environment. We are committed to doing the right thing for the right reason, being an innovator, and constantly focused on improving the quality of our homes.
TrustBuilder reviews
Take the next steps toward your new home
St. Andrews Basement Plan by Lennar
saved to favorites!
To see all the homes you’ve saved, visit the My Favorites section of your account.
Discover More Great Communities
Select additional listings for more information
We're preparing your brochure
You're now connected with Lennar. We'll send you more info soon.
The brochure will download automatically when ready.
Brochure downloaded successfully
Your brochure has been saved. You're now connected with Lennar, and we've emailed you a copy for your convenience.
The brochure will download automatically when ready.
Way to Go!
You’re connected with Lennar.
The best way to find out more is to visit the community yourself!