Collinsbrook Farm
Stonebriar 2FSW (w/Media)
12563 Dove Chase Lane, Frisco, TX, 75035
by First Texas Homes
From $947,950 This is the starting price for this plan and is subject to change.
Yearly HOA fees: $825
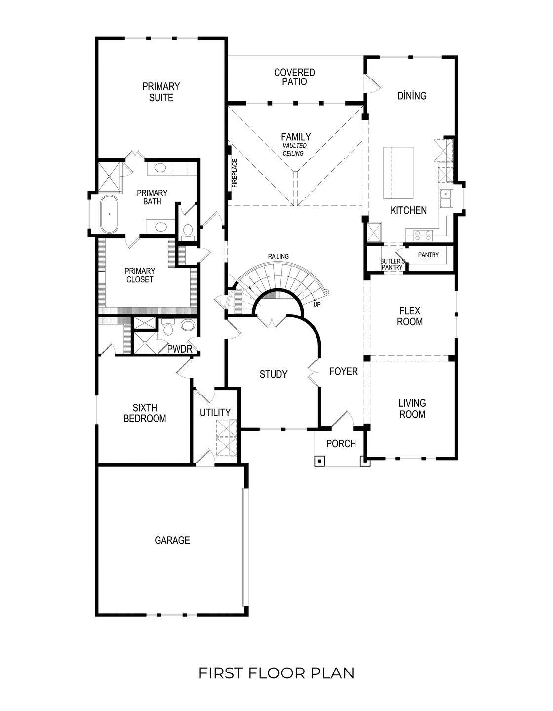
- 6 Beds
- 4 Baths
- 2 Car garage
- 4,314 Sq Ft
Overview
Floor plan features
- 2 Stories
- Covered Patio
- Primary Bed Downstairs
- Single Family
- Vaulted Ceiling
- Walk-In Closets
Floor plan description
Explore the Stonebriar 2FSW (w/Media) Floor Plan – New Home Design Available in Frisco, TX The Stonebriar 2FSW (w/Media) offers 6 bedrooms, 4 bathrooms, and 4314 sq. ft. of thoughtfully designed living space that adapts to your needs. From everyday routines to special moments, this layout is built to support how you live — with comfort, functionality, and style in mind. With features like a private study – perfect for work or quiet focus, a large open kitchen and family room – spacious and inviting, and an upstairs game and media rooms that provide the perfect foundation for personalization and everyday convenience. Whether you're relaxing, hosting, working from home, or simply enjoying daily life, the Stonebriar 2FSW (w/Media) provides the right spaces in the right places. Available in se...
Explore this home
Explore custom options for this floor plan.
Community highlights
Community amenities
Club House
Park
Playground
Pond
Pool
Trails
About Collinsbrook Farm
Perfectly positioned in a prime Frisco location, Collinsbrook Farm offers a lifestyle surrounded by recreation, convenience, and everyday luxuries. Just a short walk or drive from the expansive new Frisco's Northeast Community Park, you’ll find endless opportunities to stay active and entertained. Explore scenic walking trails, challenge friends to a tennis or basketball game, or let the kids enjoy the splash park, skate park, and playground. With multiple soccer and multipurpose fields, the park is the heart of outdoor fun for all ages. At Collinsbrook Farm, you’ll discover beautifully designed homes that showcase striking architectural details, elegant elevations, and thoughtfully planned spaces to fit your lifestyle. Each home reflects a commitment to quality, comfort, and timeless styl...
Neighborhood
Community location & sales center
12563 Dove Chase Lane Frisco, TX 75035
12563 Dove Chase Lane Frisco, TX 75035
888-989-5016
Hwy 121 to Preston. North on Preston 5.5 miles to Eldorado. Right on Eldorado. Approx. 2.5 miles to Coit Road, then turn left. Community entrance will be on left.
Nearby schools
Prosper Independent School District
Spradley Elementary School
Elementary school. Grades PK to 5.
Public school
Teacher - student ratio: 1:17
Students enrolled: 1090
469-219-2250
11411 Leona St, Frisco, TX, 75035
Hays Middle School
Middle school. Grades 6 to 8.
Public school
Teacher - student ratio: 1:16
Students enrolled: 1699
469-219-2260
14441 Hillcrest Rd, Frisco, TX, 75035
Rock Hill High School
High school. Grades 9 to 12.
Public school
Teacher - student ratio: 1:15
Students enrolled: 2832
469-219-2300
16061 Coit Rd, Frisco, TX, 75035
GreatSchools ratings are provided by GreatSchools.org and are for reference only. Ratings may not be available for all schools. Please verify school assignments and details with the local school district.
Amenities
Community & neighborhood
Local points of interest
- Community Pool
- Frisco Community Park
- Stonebriar Mall
- Playground
- Fishing Pond
- Pond
Social activities
- Club House
Health and fitness
- Pool
- Trails
Community services & perks
- Playground
- Park
Builder details
First Texas Homes

At First Texas Homes, one of our keys to success is hiring top-quality people whose first priority is the needs of our customers. Our brilliant sales consultants and knowledgeable building managers always strive to provide the highest level of customer service. Founded out of over 45 years of family history in residential building and development, First Texas Homes has been building quality homes in Texas for more than a quarter-century. Our unique approach to homebuilding incorporates in-house architectural planning, with unparalleled design flexibility. We believe that allowing our customers to incorporate their vision, by making changes to our acclaimed floor plans, helps to turn a simple house into a welcoming home.This Unprecedented flexibility, unique to First Texas Homes, ensures that you will receive a truly custom-quality home, as well as the absolute best value for your new-home dollars. With great success in our Texas markets, and an ever-increasing presence in the most sought-after communities, First Texas is sure to be building in a neighborhood you’ll be proud to call ‘home’. As a recognized leader in the industry, First Texas Homes has established a proven track record of putting the needs of our customers first. We take great pride in our unrivaled customer service, and ensure total satisfaction by involving our buyers in every step of the building process. With First Texas Homes, you’ll get everything you’ve been looking for: exceptional quality, energy-saving construction, superior design flexibility, and, most importantly, the absolute best new-home value.
Take the next steps toward your new home
This listing's information was verified with the builder for accuracy 1 day ago
Stonebriar 2FSW (W/Media) Plan by First Texas Homes
saved to favorites!
To see all the homes you’ve saved, visit the My Favorites section of your account.
Discover More Great Communities
Select additional listings for more information
We're preparing your brochure
You're now connected with First Texas Homes. We'll send you more info soon.
The brochure will download automatically when ready.
Brochure downloaded successfully
Your brochure has been saved. You're now connected with First Texas Homes, and we've emailed you a copy for your convenience.
The brochure will download automatically when ready.
Way to Go!
You’re connected with First Texas Homes.
The best way to find out more is to visit the community yourself!