Stonehaven II Plan
Ready to build
0 Dills Bluff Road, James Island SC 29412
Home by DRB Homes
at Oak Bend

Last updated 1 day ago
The Price Range displayed reflects the base price of the homes built in this community.
You get to select from the many different types of homes built by this Builder and personalize your New Home with options and upgrades.
4 BR
3.5 BA
2 GR
3,630 SQ FT

Elevation 1 1/9
Overview
1 Half Bathroom
2 Stories
Basement
Primary Bed Upstairs
Single Family
Stonehaven II Plan Info
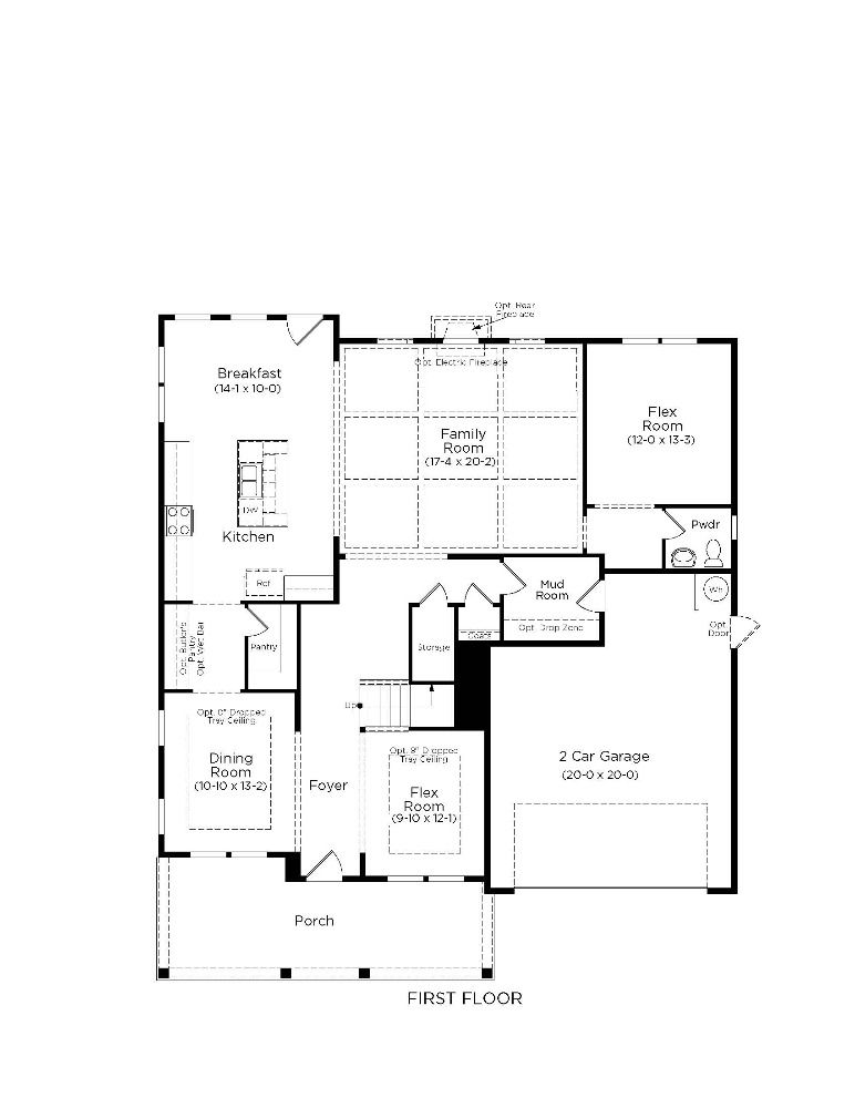
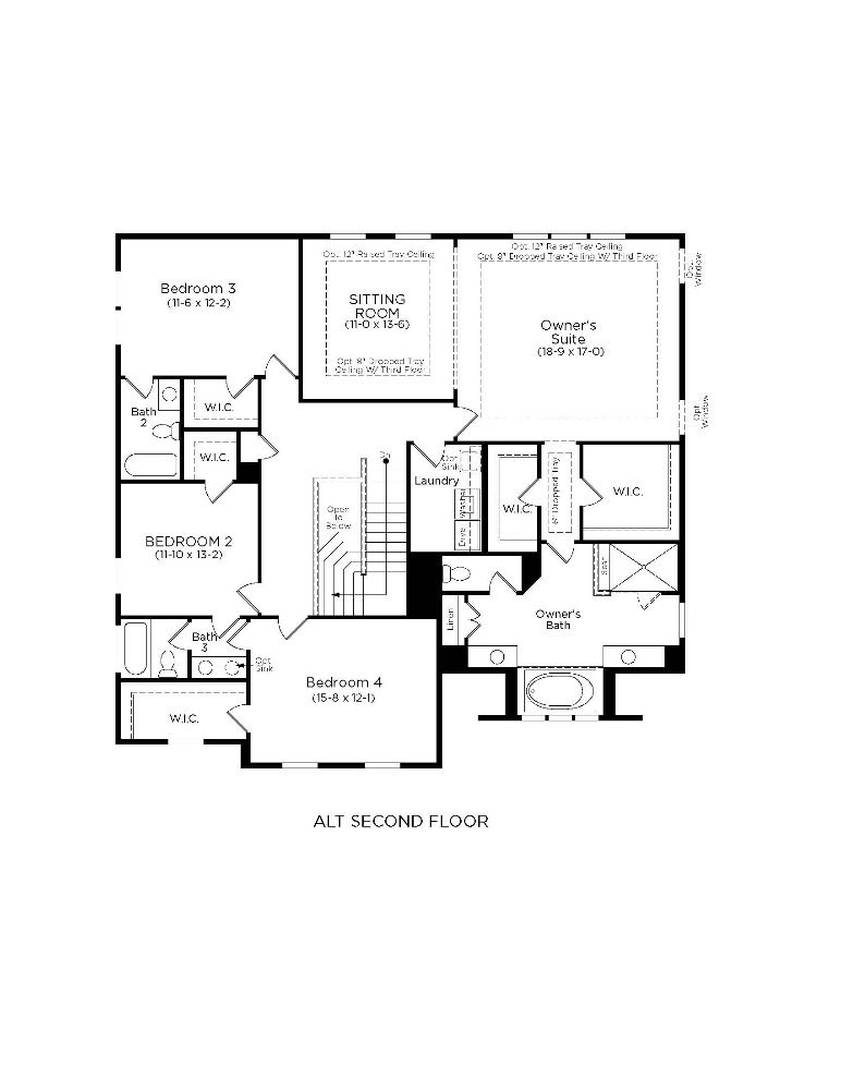
The Stonehaven II is a spacious and versatile home designed for both everyday living and entertaining. An open-concept kitchen with oversized island connects seamlessly to the breakfast area and family room, creating a natural gathering space at the heart of the home. Flexible main-level spaces offer the opportunity to personalize your layout with options such as a private study, morning room, or rear porch. Upstairs, the owner’s suite provides a relaxing retreat with generous walk-in closets and a spa-inspired bath featuring dual vanities, a soaking tub, and separate shower. Secondary bedrooms are arranged around an open loft—perfect for additional living or entertaining space—while convenient upper-level laundry adds ease to daily routines. An optional third-level bonus room offers even more flexibility, with the option to add an additional bedroom and bath for those seeking extra space.
Floor plan center
View floor plan details for this property.
- Floor Plans
- Exterior Images
- Interior Images
- Other Media
Explore custom options for this floor plan.
- Choose Option
- Include Features
Neighborhood
Community location & sales center
0 Dills Bluff Road
James Island, SC 29412
0 Dills Bluff Road
James Island, SC 29412
888-989-5968
Drive south down Dills Bluff Rd until you see Bright Ct. Oak Bend is directly across the street. If you drive north on Dills Bluff from Camp Rd, the community is on the left just past the shopping complex with Paisano's Pizza and Dollar General.
Schools near Oak Bend
- Charleston 01 School District
Actual schools may vary. Contact the builder for more information.
Amenities
Home details
Ready to build
Build the home of your dreams with the Stonehaven II plan by selecting your favorite options. For the best selection, pick your lot in Oak Bend today!
Community & neighborhood
Let DRB Homes put decades of industry experience to work for you. We understand that building a new home is not a one-size-fits-all process or journey; get ready to personalize your home to meet your unique needs. You can start by exploring the full portfolio of our most popular floor plans, all available in our new home communities across the region.
Our award-winning team is backed by the DRB Group, a growing, dynamic organization that includes two residential builder brands, a title company, and a residential development services branch providing entitlement, development and construction services. DRB Group's complete spectrum of services operates in 14 states and 35 markets -East Coast to Arizona, Colorado, Texas, and beyond.
Our DRB team will work with you every step of the way. From the on-site salespeople you meet with to the construction crew laying the foundation for your home — we're all working toward the same goal. The same is true for the members of our leadership team, who oversee the entire operation and ensure a seamless process.
TrustBuilder reviews
Take the next steps toward your new home
Stonehaven II Plan by DRB Homes
saved to favorites!
To see all the homes you’ve saved, visit the My Favorites section of your account.
Discover More Great Communities
Select additional listings for more information
We're preparing your brochure
You're now connected with DRB Homes. We'll send you more info soon.
The brochure will download automatically when ready.
Brochure downloaded successfully
Your brochure has been saved. You're now connected with DRB Homes, and we've emailed you a copy for your convenience.
The brochure will download automatically when ready.
Way to Go!
You’re connected with DRB Homes.
The best way to find out more is to visit the community yourself!