Sturgeon Plan
Ready to build
1557 NE CLARK AVE, Battle Ground WA 98604
Home by LGI Homes
at Beverly
The Price Range displayed reflects the base price of the homes built in this community.
You get to select from the many different types of homes built by this Builder and personalize your New Home with options and upgrades.
4 BR
2.5 BA
1 GR
1,873 SQ FT

Welcome to the Sturgeon by LGI Homes. 1/19
Special offers
Explore the latest promotions at Beverly. Contact LGI Homes to learn more!
Save Up to $50,000 on Select Homes Now!
Overview
1 Car Garage
1 Half Bathroom
1873 Sq Ft
2 Bathrooms
2 Stories
4 Bedrooms
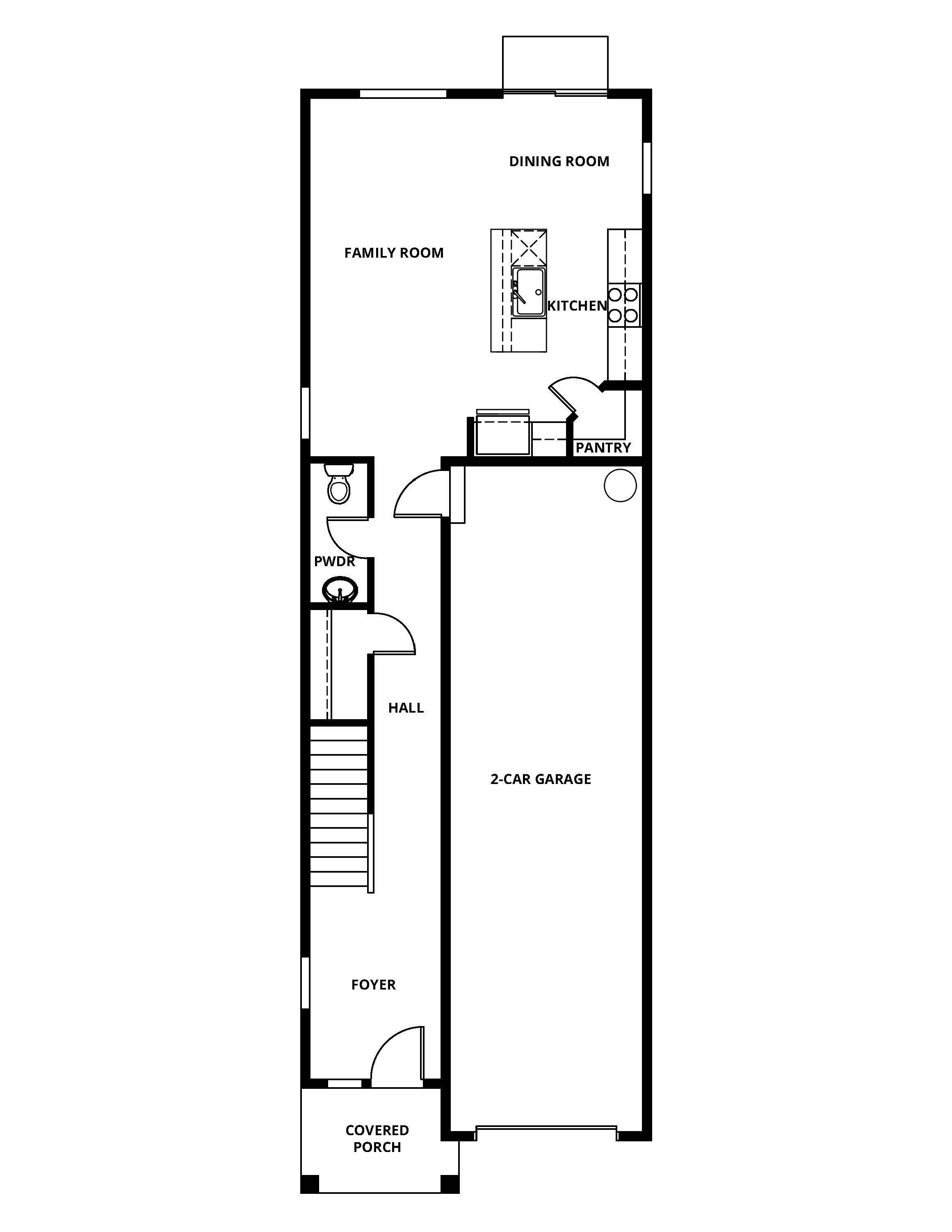
Breakfast Area
Dining Room
Family Room
Green Construction
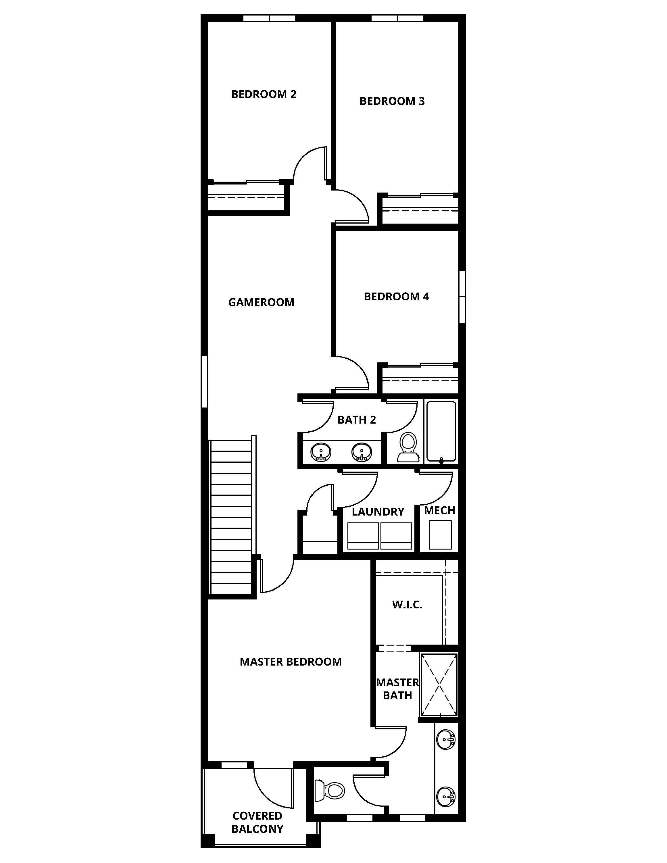
Primary Bed Upstairs
Single Family
Walk-In Closets
Sturgeon Plan Info
Full of character and charm, this single-story home in Beverly is designed for comfort and functionality. Featuring four bedrooms and two-and-a-half bathrooms, this home boasts an inviting family room, a chef-ready kitchen, a private master suite with an en-suite bath, and an upstairs loft—perfect for relaxation. Additionally, this home comes fully equipped with stylish upgrades at no extra cost, including energy-efficient Whirlpool® appliances, gleaming granite countertops, elegant wood cabinetry with crown molding, a Wi-Fi-enabled garage door opener, solar panels, and more.
Floor plan center
View floor plan details for this property.
- Floor Plans
- Exterior Images
- Interior Images
- Other Media
Neighborhood
Community location & sales center
1557 NE CLARK AVE
Battle Ground, WA 98604
1557 NE CLARK AVE
Battle Ground, WA 98604
888-801-2251
Nearby schools
Battle Ground School District
Elementary school. Grades KG to 4.
- Public school
- Teacher - student ratio: 1:16
- Students enrolled: 628
1002 Nw 6th Ave, Battle Ground, WA, 98604
360-885-6400
Elementary-Middle school. Grades 5 to 8.
- Public school
- Teacher - student ratio: 1:17
- Students enrolled: 553
700 Nw 9th St, Battle Ground, WA, 98604
360-885-6350
High school. Grades 9 to 12.
- Public school
- Teacher - student ratio: 1:19
- Students enrolled: 1798
400 W Main St, Battle Ground, WA, 98604
360-885-6500
Actual schools may vary. We recommend verifying with the local school district, the school assignment and enrollment process.
Amenities
Home details
Ready to build
Build the home of your dreams with the Sturgeon plan by selecting your favorite options. For the best selection, pick your lot in Beverly today!
Community & neighborhood
Local points of interest
- Oak Meadow Park
- Battle Ground Minor
- Kiwanis Park
- Battle Ground Skate Park
- McConnell Park
- Battle Ground Community Library
- Battle Ground Lake State Park
- Alderbrook Park Event Center
- Views
Social activities
- Barrel Mountain Brewing
- Battle Ground Cinema
- Clark County Fairgrounds
- RV Inn Style Resorts Amphitheater
Health and fitness
- Safeway
- Albertson's
- Trails
Community services & perks
- HOA fees: Unknown, please contact the builder
- Playground
- Park
Neighborhood amenities
Fred Meyer
0.89 mile away
401 NW 12th Ave
Safeway
0.93 mile away
904 W Main St
Albertsons
1.41 miles away
2108 W Main St
Walmart Supercenter
1.57 miles away
1201 SW 13th Ave
Stone Hill Market
2.93 miles away
17702 NE 122nd Ave
Tribe Coffee
0.81 mile away
209 E Main St
Albertsons Bakery
1.41 miles away
2108 W Main St
Walmart Bakery
1.57 miles away
1201 SW 13th Ave
Sweetest Thing Bake Shop
5.54 miles away
10717 NE 131st St
East West Botanicals
6.75 miles away
600 S 74th Pl
Tiger Bowl
0.65 mile away
211 N Parkway Ave
Earthen Cup Bistro
0.69 mile away
201 N Parkway Ave
Hasta CA Taqueria
0.69 mile away
201 N Parkway Ave
Detroit Pizza
0.77 mile away
308 E Main St
Cerveza Factory
0.77 mile away
11 N Parkway Ave
Old Town Battle Grounds
0.77 mile away
316 E Main St
Tribe Coffee
0.81 mile away
209 E Main St
Starbucks
0.90 mile away
401 SW 12th St
Starbucks
0.93 mile away
904 W Main St
Starbucks
1.00 mile away
11 NW 12th Ave
Encore Boutique
0.78 mile away
510 E Main St
Golden Coin & Jewelry
0.82 mile away
10 S Parkway Ave
Wags N Whiskers Pet Boutique
0.82 mile away
710 E Main St
Pine & Maple Boutique
0.95 mile away
713 W Main St
Walmart Supercenter
1.57 miles away
1201 SW 13th Ave
Playmakers Sports Bar + Grill
0.81 mile away
15 E Main St
El Rancho Viejo
0.82 mile away
19 W Main St
Happy Family Restaurant & Lounge
0.83 mile away
611 E Main St
Galeotti's Wine Cellar
0.85 mile away
715 E Main St
Main Street Station Bar & Grill
0.85 mile away
805 E Main St
Please note this information may vary. If you come across anything inaccurate, please contact us.
Here at LGI Homes, we know that we're a new home builder that is different. Building homes with great value and great prices in excellent locations, such as Dallas-Fort Worth, Houston, San Antonio, Austin, Phoenix, Tucson, Albuquerque, Tampa, Orlando, Charlotte, Denver and Atlanta. In every one of our new home communities, we have assembled a team of dedicated home buying professionals who are ready and able to walk you through the home buying process, and help you find the perfect new home. Contact us now, and let us start you on your journey toward homeownership. You’ll be glad you did!
TrustBuilder reviews
Take the next steps toward your new home
Sturgeon Plan by LGI Homes
saved to favorites!
To see all the homes you’ve saved, visit the My Favorites section of your account.
Discover More Great Communities
Select additional listings for more information
We're preparing your brochure
You're now connected with LGI Homes. We'll send you more info soon.
The brochure will download automatically when ready.
Brochure downloaded successfully
Your brochure has been saved. You're now connected with LGI Homes, and we've emailed you a copy for your convenience.
The brochure will download automatically when ready.
Way to Go!
You’re connected with LGI Homes.
The best way to find out more is to visit the community yourself!