Cane Crossing Estates
Tacoma
201 Eldridge Dr, Sealy, TX, 77474
by K. Hovnanian® Homes 1003 TrustBuilder reviews
From $391,490 This is the starting price for this plan and is subject to change.
- 3 Beds
- 2.5 Baths
- 4 Car garage
- 2,092 Sq Ft
Overview
Floor plan features
- 1 Half Bathroom
- 1 Story
- Single Family
Floor plan description
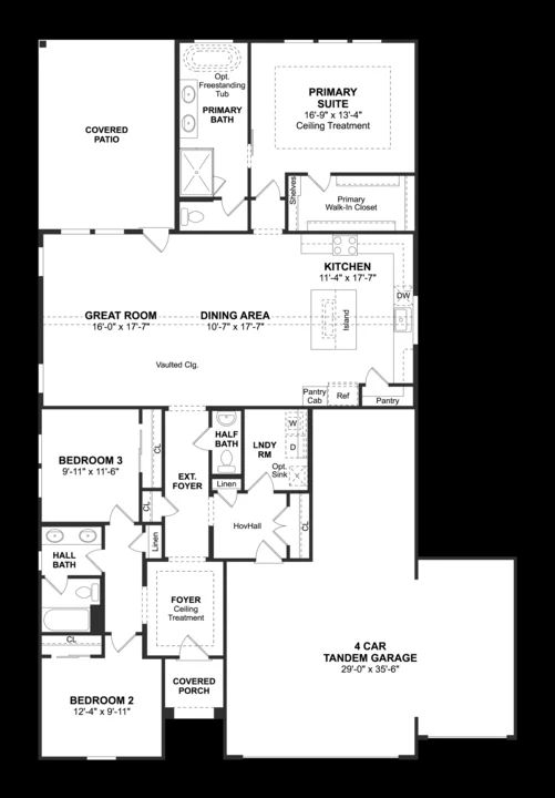
Kitchen with spacious island and beautifully designed cabinets. Great room with access to expansive covered patio. Primary suite with primary bath featuring double sinks. Two secondary bedroom near hall bath with double sinks. Four-car tandem garage for extra storage or workshop space.
Explore this home
Explore custom options for this floor plan.
Special offers
Explore the latest promotions at Cane Crossing Estates. to learn more!
Unlock Exclusive Incentives Today!
Take advantage of exclusive incentives – available for a limited time!
Community highlights
Community amenities
Pond
About Cane Crossing Estates
Escape the hustle and bustle of the big city in a new-construction home in Sealy, TX at Cane Crossing Estates. Situated on homesites up to 1 acre, these stunning and spacious homes offer up to 6 bedrooms, 4.5 baths, and over 3,400 sq.ft. Explore designer-curated Looks collections of interior finishes for a beautiful home that matches your style. Enjoy rural living without compromising on convenience; with proximity to I-10 and TX-36, excellent schools, endless outdoor recreation, and more. With a low tax rate, you can enjoy the serenity of country living with added financial benefits. Offered By: K. Hovnanian of Houston II, L.L.C. More info about Cane Crossing Estates
Neighborhood
Community location & sales center
201 Eldridge Dr Sealy, TX 77474
201 Eldridge Dr Sealy, TX 77474
888-877-9481
Amenities
Community & neighborhood
Local points of interest
- Pond
Neighborhood amenities
Walmart Bakery
2.78 miles away
310 Overcreek Way
Betsy's Bakery & Cafe
3.73 miles away
125 2nd St
Subway
1.54 miles away
6023 FM 3538 Rd
Prasek's Hill J E Smokehouse
1.69 miles away
2949 Interstate 10
Hunt Brothers Pizza
1.77 miles away
6025 FM 3538 Rd
Sealy Truck Stop Diner
2.25 miles away
5058 NW I 10 Frontage Rd
Reyes Mexican Cafe
2.45 miles away
1701 Highway 90 W
Dippin Donuts
3.04 miles away
418 Highway 90 W
Dunkin'
3.05 miles away
6701 US 90
Starbucks
3.05 miles away
2013 Meyer Rd
Donut Palace
3.67 miles away
130 Meyer St
Branded Texas Botique
2.45 miles away
1701 Highway 90 W
Walmart Supercenter
2.78 miles away
310 Overcreek Way
Bealls
3.05 miles away
2280 TX-36 S
Family Dollar
3.46 miles away
602 Meyer St
Bliss
3.65 miles away
124 Main St
Creekmore's Sports Bar
2.92 miles away
3797 Highway 36 S
Garden Lounge
3.03 miles away
2107 Highway 36 S
The Slussshack Daiquiris to Go
3.61 miles away
203 Meyer St
Saddleback Saloon Bar & Grill
3.64 miles away
207 Main St
Frydek Roadhouse & Winegarden
6.44 miles away
10108 FM 1458 Rd
Please note this information may vary. If you come across anything inaccurate, please contact us.
Builder details
K. Hovnanian® Homes

4.5 out of 5 stars
1003 Reviews in the Houston Area
VIEW RATINGS & REVIEWSTo succeed for more than 50 years as a company, it helps to have a clear vision of what you stand for. Back in 1959, Kevork S. Hovnanian gave us just that when he created K. Hovnanian® Homes®. We know your home is the foundation of your family's lifestyle, and we honor that philosophy by making sure your new home meets your every desire. In towns and cities throughout America, we have been translating ideas into blueprints and dreams into homes. Utilizing state-of-the-art technologies, construction methods and materials, our experienced architects, designers and planners create homes to meet your every need. Our land acquisition specialists search for the best areas to plan communities that are conveniently located and take advantage of the natural terrain. Whether you are purchasing your first home, moving up to a larger residence to accommodate your growing family, seeking an upscale mid-rise condominium or country estate, or considering a new home on your own land, K. Hovnanian® will help you find the home of your dreams. We are a company devoted to building communities of excellence. K. Hovnanian® Homes® is heir to a history of solid success, financial strength, award-winning standards of homebuilding quality and an authentic commitment to customer satisfaction. Sharing this heritage with you, as your homebuilder, is both our mission and our privilege. It is important to know that the company building your home has built a sound legacy of business success. Hovnanian Enterprises®, Inc. began trading on the New York Stock Exchange in 2001 and has continually grown in financial strength to rank among the top ten homebuilding companies in America. This strength assures you that your home and neighborhood are the results of our dedication and commitment. Now in its second generation of family leadership, it has been our privilege to build over 310,000 homes for families just like yours across the Nation. It would be our honor to do the same for you.
TrustBuilder reviews
Take the next steps toward your new home
This listing's information was verified with the builder for accuracy 2 days ago
Tacoma Plan by K. Hovnanian® Homes
saved to favorites!
To see all the homes you’ve saved, visit the My Favorites section of your account.
Discover More Great Communities
Select additional listings for more information
We're preparing your brochure
You're now connected with K. Hovnanian® Homes. We'll send you more info soon.
The brochure will download automatically when ready.
Brochure downloaded successfully
Your brochure has been saved. You're now connected with K. Hovnanian® Homes, and we've emailed you a copy for your convenience.
The brochure will download automatically when ready.
Way to Go!
You’re connected with K. Hovnanian® Homes.
The best way to find out more is to visit the community yourself!