The 2157 Plan
Ready to build
18003 NE 14th St, Vancouver WA 98684
Home by Holt Homes

The Price Range displayed reflects the base price of the homes built in this community.
You get to select from the many different types of homes built by this Builder and personalize your New Home with options and upgrades.
3 BR
2.5 BA
2 GR
2,157 SQ FT

Elevation C 1/3
Special offers
Explore the latest promotions at Harmony Heights. Contact Holt Homes to learn more!
Community Heroes Program
Overview
1 Half Bathroom
2 Bathrooms
2 Car Garage
2 Stories
2157 Sq Ft
3 Bedrooms
Covered Patio
Dining Room
Primary Bed Upstairs
Single Family
Walk-In Closets
The 2157 Plan Info
A Spacious and Stylish Forever Home
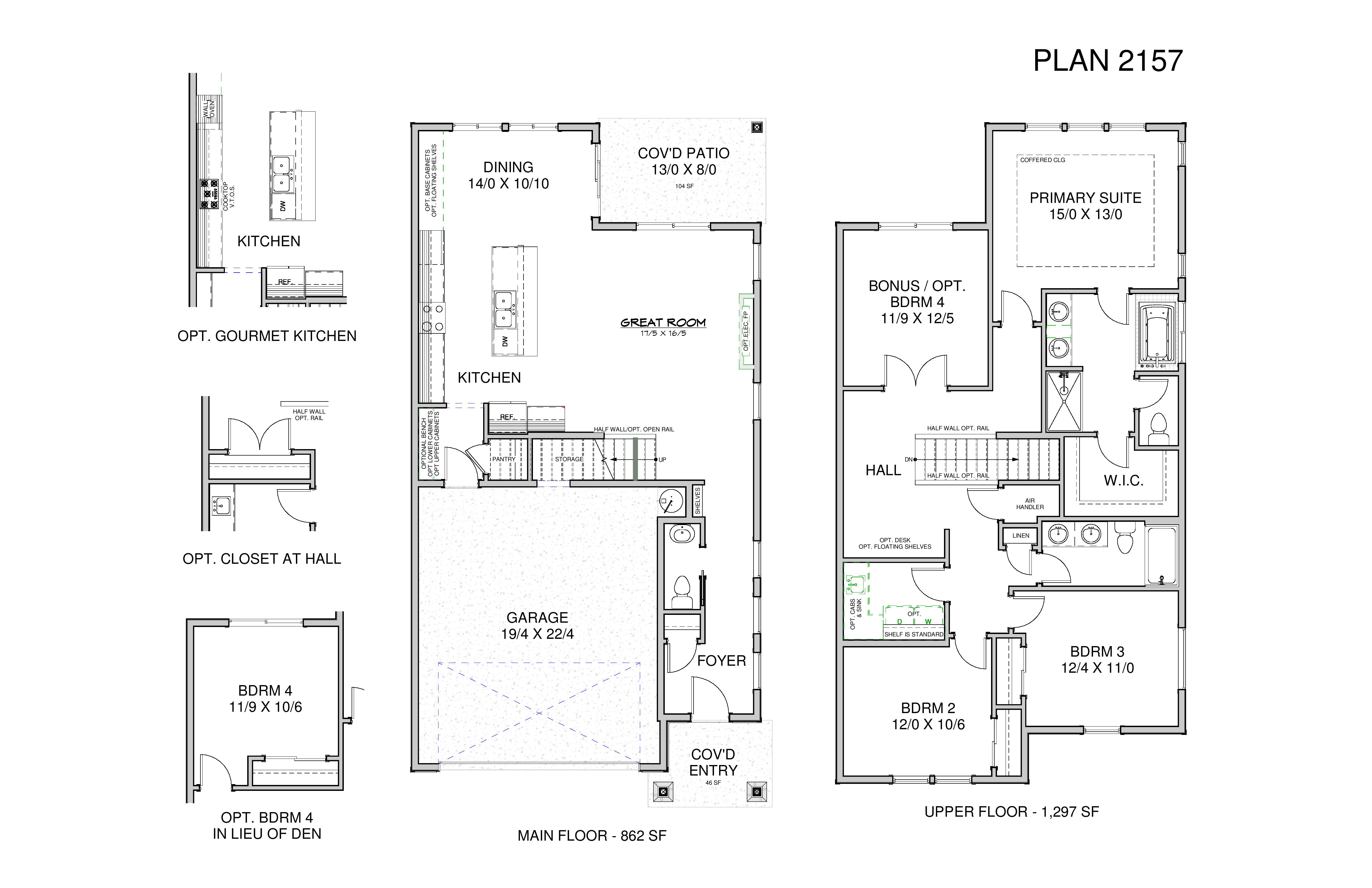
Step into the 2157 floor plan from Holt Homes and discover every thoughtful element, designed to make this 2-story, 3-4 bedroom and 2.5 bath home a place you’ll want to live forever. From easily adaptable spaces to accommodate your growing family, to options to upgrade and a relaxing atmosphere that promotes wellness, it’s easy to envision building a lifetime of memories in this beautiful home!
A Great Garage
Large enough to hold two standard-sized vehicles, this garage features a recessed water heater nook to optimize space and make parking effortless!
Entryways That Organize
Just beyond the covered entryway at the front of the house, you’ll find a functional foyer that helps capture clutter before it enters the home. With room for hooks and a coat closet, this space invites you to drop bags, jackets and shoes in their dedicated space making for smooth transitions in and out of your home.
A space to add a bench or shelving just beyond the door from the garage into the home is yet another space that helps keep you and your family organized.
Seamless First Floor Living Space
Form meets function on the first floor with a light and bright open-concept floor plan that encourages gathering and relaxing. Cook a meal in the spacious kitchen while chatting with guests congregated in the great room. Or, help kiddos with homework after dinner in the dedicated dining room. And, enjoy the convenience of a half bath on the first floor. Make these spaces more formal, or relaxed, depending on your family’s needs and wants. Be sure to ask your Holt Home Representative about upgrading to a gourmet kitchen or adding an electric fireplace in the great room!
Indoor-Outdoor Living
Enjoy your backyard 365 days a year from the comfort of your ample covered patio.
Floor plan center
View floor plan details for this property.
- Floor Plans
- Exterior Images
- Interior Images
- Other Media
Neighborhood
Community location & sales center
18003 NE 14th St
Vancouver, WA 98684
18003 NE 14th St
Vancouver, WA 98684
888-937-7775
Schools near Harmony Heights
- Evergreen School District (clark)
Actual schools may vary. Contact the builder for more information.
- Highly-rated Evergreen School District
Amenities
Choose from a variety of two-story floor plans with 3–4 bedrooms, spacious great rooms, flex spaces, and open-concept kitchens ideal for everyday living and entertaining. Each Holt home is built with durable materials, energy-efficient features, and the personalized touches that make your home truly yours.
Community Highlights:
A wide range of new homes for sale in Vancouver, WA, starting in the mid $500Ks Functional layouts with smart storage, large kitchens, and covered patios Harmony Sport Complex within walking distance Personalize your space with our design center partner, with curated finishes and options Located in the highly rated Evergreen School District, close to Illahee Elementary & Union High Just minutes to daily essentials like Target, New Seasons Market, and Vancouver Mall Easy access to I-205, SR-500, and Padden Parkway—20 minutes to Portland Close to outdoor recreation at Lacamas Lake, Pacific Community Park, and the Columbia River
Whether you’re searching for a family-friendly neighborhood or downsizing without compromise, Harmony Heights offers new homes in Vancouver, Washington, designed for how you live today—and tomorrow. More info about Harmony Heights
Home details
Ready to build
Build the home of your dreams with the The 2157 plan by selecting your favorite options. For the best selection, pick your lot in Harmony Heights today!
Community & neighborhood
Local points of interest
- Harmony Sport Complex
- Target
- New Seasons Market
- Vancouver Mall
- Easy access to I-205, SR-500, and Padden Parkway—20 minutes to Portland
- Pacific Community Park
- Columbia River
- Camas Meadows Golf Club
- Lacamas Lake/Heritage Park
Community services & perks
- HOA fees: Unknown, please contact the builder
For more than three decades, Holt Homes has built new construction homes for families in Oregon and Southwest Washington. The quality and experience of our people, the ease and efficiency of our approach, and the livability of our communities work hand-in-hand to make Holt Homes the largest locally-grown home builder in the region.
Our purpose is to create better places to live in the Pacific Northwest. Our approach to working with you is simple: provide a guiding hand through each step of the process. Make it friendly and easy to understand. Offer better building solutions in partnership with the best area tradespeople and suppliers. Then to build the right home with the materials and options that are right for this region. Most importantly, to build the home that is right for you. We believe that a home built right has these four ingredients: good land, good people, good service, and good value.
What makes a home uniquely yours? The details. The extras, features and touches that fill out your creative vision. As a production homebuilder we work to always balance pricing with optionality. When you buy a home from Holt, you can always leave your personal mark.
Take the next steps toward your new home
The 2157 Plan by Holt Homes
saved to favorites!
To see all the homes you’ve saved, visit the My Favorites section of your account.
Discover More Great Communities
Select additional listings for more information
We're preparing your brochure
You're now connected with Holt Homes. We'll send you more info soon.
The brochure will download automatically when ready.
Brochure downloaded successfully
Your brochure has been saved. You're now connected with Holt Homes, and we've emailed you a copy for your convenience.
The brochure will download automatically when ready.
Way to Go!
You’re connected with Holt Homes.
The best way to find out more is to visit the community yourself!