The 2184 Plan
Ready to build
2264 McCracken Road, Woodland WA 98674
Home by Holt Homes
at Alder & Ash

The Price Range displayed reflects the base price of the homes built in this community.
You get to select from the many different types of homes built by this Builder and personalize your New Home with options and upgrades.
3 BR
2.5 BA
2 GR
2,184 SQ FT

Elevation A 1/12
Special offers
Explore the latest promotions at Alder & Ash. Contact Holt Homes to learn more!
Community Heroes Program
Overview
1 Half Bathroom
2 Bathrooms
2 Car Garage
2 Stories
2184 Sq Ft
3 Bedrooms
Covered Patio
Dining Room
Loft
Multi Family
Office
Porch
Primary Bed Upstairs
Walk-In Closets
The 2184 Plan Info
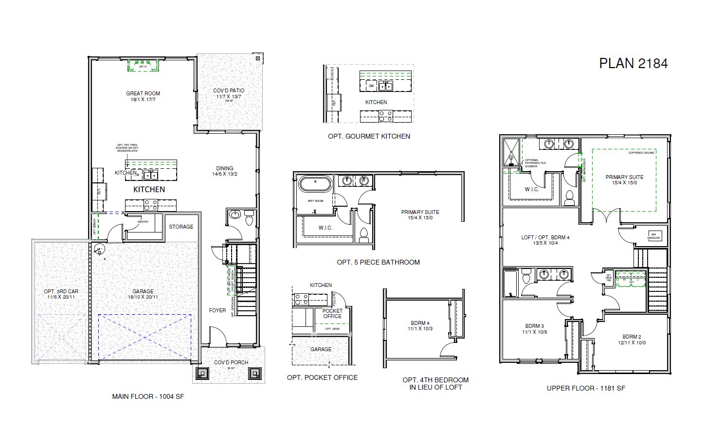
Welcome Home Step inside through a covered entry into a spacious foyer designed to create a warm first impression. High ceilings and an open layout invite natural light, enhancing the sense of space. Opt for an open rail staircase for a modern touch, or add a built-in bench and shoe niche for convenience and organization. A nearby coat closet keeps outerwear neatly stored. A Functional Mudroom For those entering through the garage, the mudroom offers a practical drop zone for jackets, backpacks, and groceries. With easy access to the kitchen and a nearby pantry, staying organized has never been simpler. A Kitchen Designed for Connection At the heart of the home, the kitchen boasts expansive countertops, a central island, and clear sightlines to the dining nook, patio, and great room. Large windows invite natural light, while an optional fireplace adds a cozy touch. A slider door leads to a covered patio, perfect for year-round outdoor enjoyment. A nearby pocket office provides a quiet space for work or study. A Versatile Loft Upstairs, a bright and open loft adapts to your needs—use it as a media room, playroom, reading nook, or an extra bedroom. Optional soundproofing ensures privacy and tranquility. A Thoughtfully Placed Laundry Room Located away from bedrooms to minimize noise, the laundry room offers storage solutions and space for folding or hanging clothes, making chores more efficient. A Home Designed for Your Lifestyle Every element of this home is crafted for co
Floor plan center
View floor plan details for this property.
- Floor Plans
- Exterior Images
- Interior Images
- Other Media
Neighborhood
Community location & sales center
2264 McCracken Road
Woodland, WA 98674
2264 McCracken Road
Woodland, WA 98674
888-657-4601
Nearby schools
Woodland School District
High school. Grades 9 to 12.
- Public school
- Teacher - student ratio: 1:20
- Students enrolled: 658
1500 Dike Access Rd, Woodland, WA, 98674
360-841-2800
Actual schools may vary. We recommend verifying with the local school district, the school assignment and enrollment process.
Amenities
148 homesites with single-family floor plans featuring high-end specifications and customizable finishes
Close proximity to schools, restaurants, and grocery stores Several nearby recreational opportunities such as Horseshoe Lake Park and Lake Merwin Park, which both offer water access, Mt. St. Helens Volcanic National Park and Lewis River Golf CourseMore info about Alder & Ash
Home details
Ready to build
Build the home of your dreams with the The 2184 plan by selecting your favorite options. For the best selection, pick your lot in Alder & Ash today!
Community & neighborhood
Local points of interest
- Fat Moose Bar & Grill
- Matt & Mandy's Family Diner
- Safeway
- Horseshoe Lake Park
- Woodland Motocross Park
- Several nearby recreational opportunities such as Horseshoe Lake Park and Lake Merwin Park, which both offer water access, Mt. St. Helens Volcanic National Park and Lewis River Golf Course
- Close proximity to schools, restaurants, and grocery stores
- Overlooking the Lewis River with access to walking trails
- Lake Merwin Park
- Mt. St. Helens Volcanic National Park
- Greenbelt
Health and fitness
- Lewis River Golf Course
Community services & perks
- HOA fees: Unknown, please contact the builder
Neighborhood amenities
Grocery Outlet
1.43 miles away
1325 Lewis River Rd
Safeway
1.51 miles away
1725 Pacific Ave
Walmart Supercenter
1.71 miles away
1486 Dike Access Rd
El Toro Market
2.00 miles away
629 Goerig St
Tienda Jalisco Norte
2.08 miles away
615 Park St
Walmart Bakery
1.71 miles away
1486 Dike Access Rd
Sweet Nettie Cakes
4.85 miles away
1534 E Caples Ct
Sadie & Josie's Bakery Inc
5.13 miles away
582 NW Pacific Hwy
Wigglebutz Pet Bakery
6.51 miles away
1945 Columbia Blvd
Fat Moose Bar & Grill
0.41 mile away
1382 Lewis River Rd
Wayback Burgers
1.33 miles away
1955 Belmont Loop
Popeyes
1.35 miles away
1975 Belmont Loop
Papa Murphy's Take 'n' Bake
1.47 miles away
1999 Pacific Ave
Subway
1.47 miles away
1999 Pacific Ave
Crow Moon Coffee
1.35 miles away
1935 Belmont Loop
Rooster Brew Espresso
1.44 miles away
1600 Atlantic Ave
Starbucks
1.47 miles away
1999 Pacific Ave
Luckman Coffee Company
1.50 miles away
1230 Lewis River Rd
Starbucks
1.51 miles away
1725 Pacific Ave
The Empress Estate
1.28 miles away
460 Empress Ln
Walmart Supercenter
1.71 miles away
1486 Dike Access Rd
Cowlitz Trading Post
5.18 miles away
1 Cowlitz Way
Marshall Rousso
5.18 miles away
1 Cowlitz Way
Ruby Blue
5.18 miles away
1 Cowlitz Way
Fat Moose Bar & Grill
0.41 mile away
1382 Lewis River Rd
Antidote Tap House
1.51 miles away
1350 Atlantic Ave
Brock' S Bar & Grill
2.12 miles away
134 Davidson Ave
Merwintaptavern
2.12 miles away
134 Davidson Ave
North Fork Grille
3.12 miles away
3209 Old Lewis River Rd
Please note this information may vary. If you come across anything inaccurate, please contact us.
For more than three decades, Holt Homes has built new construction homes for families in Oregon and Southwest Washington. The quality and experience of our people, the ease and efficiency of our approach, and the livability of our communities work hand-in-hand to make Holt Homes the largest locally-grown home builder in the region.
Our purpose is to create better places to live in the Pacific Northwest. Our approach to working with you is simple: provide a guiding hand through each step of the process. Make it friendly and easy to understand. Offer better building solutions in partnership with the best area tradespeople and suppliers. Then to build the right home with the materials and options that are right for this region. Most importantly, to build the home that is right for you. We believe that a home built right has these four ingredients: good land, good people, good service, and good value.
What makes a home uniquely yours? The details. The extras, features and touches that fill out your creative vision. As a production homebuilder we work to always balance pricing with optionality. When you buy a home from Holt, you can always leave your personal mark.
Take the next steps toward your new home
The 2184 Plan by Holt Homes
saved to favorites!
To see all the homes you’ve saved, visit the My Favorites section of your account.
Discover More Great Communities
Select additional listings for more information
We're preparing your brochure
You're now connected with Holt Homes. We'll send you more info soon.
The brochure will download automatically when ready.
Brochure downloaded successfully
Your brochure has been saved. You're now connected with Holt Homes, and we've emailed you a copy for your convenience.
The brochure will download automatically when ready.
Way to Go!
You’re connected with Holt Homes.
The best way to find out more is to visit the community yourself!