The 3297 Plan
Ready to build
1302 N Kalani Loop, Ridgefield WA 98642
Home by Holt Homes

The Price Range displayed reflects the base price of the homes built in this community.
You get to select from the many different types of homes built by this Builder and personalize your New Home with options and upgrades.
4 BR
3.5 BA
3 GR
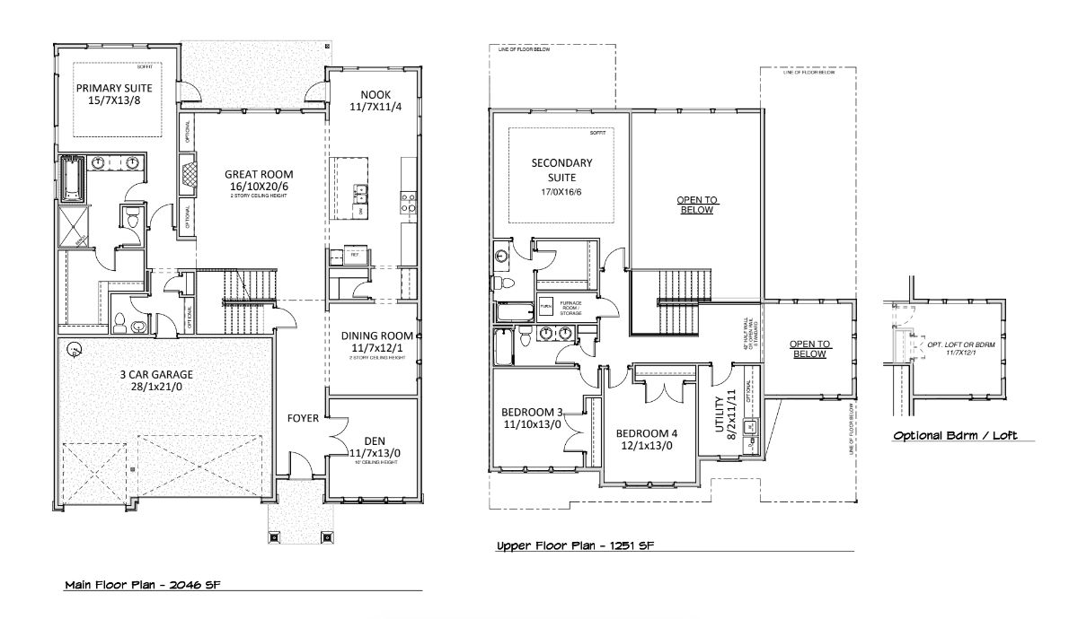
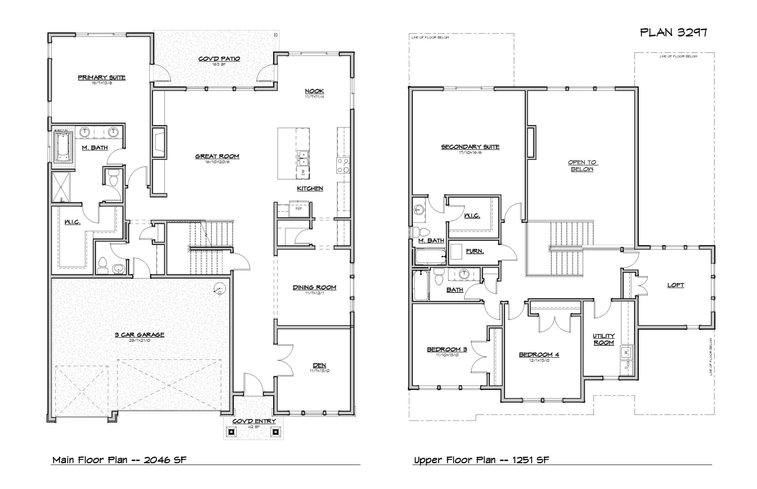
3,297 SQ FT

The 3297 A 1/22
Special offers
Explore the latest promotions at Paradise Pointe. Contact Holt Homes to learn more!
Community Heroes Program
Overview
1 Half Bathroom
2 Stories
3 Bathrooms
3 Car Garage
3297 Sq Ft
4 Bedrooms
Breakfast Area
Covered Patio
Dining Room
Fireplaces
Primary Bed Downstairs
Single Family
Vaulted Ceiling
Walk-In Closets
The 3297 Plan Info
Who says you can’t have it all? In this classy 3,297 square foot home, you can!
Enjoy the convenience of dual master suites on each level, perfect for guests or generational living. Host a holiday dinner party in your formal dining room or enjoy quiet mornings in your dining nook while savoring breakfast. Your spacious great room hosts 20-foot ceilings and a built-in fireplace which makes curling up on a cold night while watching a movie feel majestic. Holt’s team of designers have selected fashion forward standards in each with the option for purchaser to upgrade, reflecting your personal style. With these options, every Holt home will truly feel like home.*
Floor plan center
View floor plan details for this property.
- Floor Plans
- Exterior Images
- Interior Images
- Other Media
Neighborhood
Community location & sales center
1302 N Kalani Loop
Ridgefield, WA 98642
1302 N Kalani Loop
Ridgefield, WA 98642
888-727-1516
Nearby schools
Ridgefield School District
Elementary school. Grades KG to 4.
- Public school
- Teacher - student ratio: 1:14
- Students enrolled: 713
330 N 5th Ave, Ridgefield, WA, 98642
360-750-7600
Middle school. Grades 7 to 8.
- Public school
- Teacher - student ratio: 1:17
- Students enrolled: 591
510 Pioneer St, Ridgefield, WA, 98642
360-619-1400
High school. Grades 9 to 12.
- Public school
- Teacher - student ratio: 1:20
- Students enrolled: 1133
2630 S Hillhurst Rd, Ridgefield, WA, 98642
360-619-1320
Actual schools may vary. We recommend verifying with the local school district, the school assignment and enrollment process.
Amenities
Beyond your backyard, you’ll find that nearby Ridgefield National Wildlife Refuge is teeming with opportunities to explore the Columbia River, bird watch, and learn more about Native American History and habitat conservation as you explore its 5,200 acres. A dip in the Lewis River in the sultry summer months is easy to enjoy on a whim with Paradise Point State Park practically in your backyard. A quick ten minute drive and you can lounge on sandy river beaches, hike through gorgeous forest and even enjoy a weekend of camping.
Nightlife, entertainment and dining are also close by with Ilani Casino Resort a short seven minute drive from home. If daytime tunes, a farmers market and a splash pad sound more appealing, Overlook Park on Main Street is just the ticket.
Parents of school-aged children will love to learn that Paradise Pointe residents have access to Union Ridge Elementary, View Ridge Middle School and Ridgefield High School. New this year, Ridgefield School District has incorporated a K-6 after school program called Right at Home– great for families with busy schedules and work commitments.
Located in the heart of Ridgefield, WA, Paradise Pointe is conveniently close to all your daily essentials from grocery stores, restaurants, coffee shops and more– all under a ten minute drive. And, whether for business or pleasure, Portland International Airport is a quick 30 minutes from door-to-door.
Find your peaceful oasis in a Holt home at Paradise Pointe.
More info about Paradise Pointe
Home details
Ready to build
Build the home of your dreams with the The 3297 plan by selecting your favorite options. For the best selection, pick your lot in Paradise Pointe today!
Community & neighborhood
Local points of interest
- Starbucks
- Taps Beer Reserve
- Windy Hills Winery
- 14 Acres Vineyard & Winery
- Costco
- BevRidge Public House
- Eight Cow Creamery
- Ilani Casino Resort
- Ridgefield National Wildlife Refuge
- Overlook Park on Main Street
- Paradise Point State Park
- Columbia River
- Lewis River
- Rosauers Supermarket
- Portland International Airport is a quick 30 minutes from door-to-door.
- Greenbelt
Health and fitness
- Trails
Community services & perks
- HOA fees: Unknown, please contact the builder
- Each spacious lot, ranging from 7,500 to 9,500 sq. ft., gives you plenty of room to build your life around time spent outdoors.
Neighborhood amenities
Rosauers Supermarkets
0.91 mile away
101 S 47th Ave
One Source Food Solutions
1.49 miles away
127 N Main Ave
Ridgefield Pioneer Marketplace
1.49 miles away
203 Pioneer Ave
Starliner Food Mart
1.63 miles away
320 Pioneer St
St Helens Red Apple Market
5.29 miles away
1111 Columbia Blvd
Killa Bites
1.46 miles away
510 Pioneer St
East West Botanicals
2.20 miles away
600 S 74th Pl
Sadie & Josie's Bakery Inc
3.27 miles away
582 NW Pacific Hwy
Sweet Nettie Cakes
3.73 miles away
1534 E Caples Ct
Papa Murphy's Take 'n' Bake
0.81 mile away
4306 S Settler Dr
MOD Pizza
0.87 mile away
11 S 47th Ave
Ichi Teriyaki 30
0.96 mile away
255 S 47th Ave
Taco Bell
0.96 mile away
50 S 48th Pl
El Rancho Viejo Ridgefield
1.49 miles away
122 N 3rd Ave
Starbucks
0.80 mile away
4300 S Settler Dr
Stonehill Coffee House
3.36 miles away
209 E 4th St
Starbucks
5.38 miles away
795 Columbia River Hwy
Gathering Net Coffee House
5.55 miles away
1945 Columbia Blvd
Dutch Bros Coffee
5.75 miles away
2274 Columbia Blvd
Cowlitz Trading Post
2.01 miles away
1 Cowlitz Way
Marshall Rousso
2.01 miles away
1 Cowlitz Way
Ruby Blue
2.01 miles away
1 Cowlitz Way
Woodland Cottage Handpicked
4.86 miles away
241 S 1st St
Diannas Formal Affair
5.48 miles away
1811 Columbia Blvd
Sportsman Bar & Grill
1.49 miles away
121 N Main Ave
360 Bar
2.01 miles away
1 Cowlitz Way
Stadium Sports Bar & Grill
2.01 miles away
1 Cowlitz Way
3Peaks Public House & Taproom
3.16 miles away
24415 NE 10th Ave
Palace Casino
3.18 miles away
318 NW Pacific Hwy
Please note this information may vary. If you come across anything inaccurate, please contact us.
For more than three decades, Holt Homes has built new construction homes for families in Oregon and Southwest Washington. The quality and experience of our people, the ease and efficiency of our approach, and the livability of our communities work hand-in-hand to make Holt Homes the largest locally-grown home builder in the region.
Our purpose is to create better places to live in the Pacific Northwest. Our approach to working with you is simple: provide a guiding hand through each step of the process. Make it friendly and easy to understand. Offer better building solutions in partnership with the best area tradespeople and suppliers. Then to build the right home with the materials and options that are right for this region. Most importantly, to build the home that is right for you. We believe that a home built right has these four ingredients: good land, good people, good service, and good value.
What makes a home uniquely yours? The details. The extras, features and touches that fill out your creative vision. As a production homebuilder we work to always balance pricing with optionality. When you buy a home from Holt, you can always leave your personal mark.
Take the next steps toward your new home
The 3297 Plan by Holt Homes
saved to favorites!
To see all the homes you’ve saved, visit the My Favorites section of your account.
Discover More Great Communities
Select additional listings for more information
We're preparing your brochure
You're now connected with Holt Homes. We'll send you more info soon.
The brochure will download automatically when ready.
Brochure downloaded successfully
Your brochure has been saved. You're now connected with Holt Homes, and we've emailed you a copy for your convenience.
The brochure will download automatically when ready.
Way to Go!
You’re connected with Holt Homes.
The best way to find out more is to visit the community yourself!