The Arden Plan
Ready to build
12700 Ironstone Drive, Lake View AL 35111
Home by D.R. Horton
at Tannehill

Last updated 19 hours ago
The Price Range displayed reflects the base price of the homes built in this community.
You get to select from the many different types of homes built by this Builder and personalize your New Home with options and upgrades.
4 BR
2.5 BA
2 GR
1,885 SQ FT

Elevation 0 1/12
Overview
1 Half Bathroom
2 Stories
Single Family
The Arden Plan Info
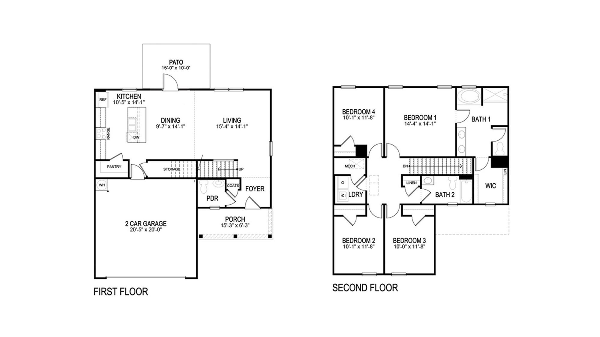
The Arden floor plan offers a spacious 1,885 square feet of living space, featuring 4 bedrooms, 2.5 bathrooms, and a 2-car garage designed for modern comfort and convenience. The main level boasts an open-concept layout, where the kitchen seamlessly connects to the dining area and living room, creating the ideal setting for both daily living and entertaining. The kitchen is thoughtfully designed with a pantry, ample counter space, and direct access to the patio for effortless indoor-outdoor flow. A welcoming foyer, convenient powder room, and additional storage enhance the functionality of the first floor. Upstairs, the expansive primary suite serves as a private retreat with a luxurious bathroom featuring double vanities, a walk-in shower, and a spacious walk-in closet. Three additional bedrooms, a full bathroom, and a centrally located laundry room provide comfort and practicality for the entire household. Quality craftsmanship, attention to detail, and superior materials are evident throughout, offering long-lasting value and peace of mind. Every one of our homes also come equipped with a smart home technology package designed to make daily life simpler and more connected. Enjoy features like lighting automation, an IQ panel, video doorbell, keyless front entry, and smartphone-controlled temperature settings for maximum convenience. Our dedicated team is here to ensure your homebuying journey is seamless-take the first step today and make The Arden your new home.
Floor plan center
View floor plan details for this property.
- Floor Plans
- Exterior Images
- Interior Images
- Other Media
Neighborhood
Community location & sales center
12700 Ironstone Drive
Lake View, AL 35111
12700 Ironstone Drive
Lake View, AL 35111
888-986-3691
Take I-459 S in Jefferson County. Take exit 100 from I-20 W/I-59 S. Turn onto AL-216 E. Go about 0.5 miles and turn right toward Tannehill Pkwy. Continue on Tannehill Pkwy for about 0.7 miles and then turn left onto Central Park Drive. Continue straight, and then turn right onto Downing Park Circle.
Nearby schools
Tuscaloosa County School System
Lake View Elementary School
Elementary school. Grades PK to 5.
Public school
Teacher - student ratio: 1:20
Students enrolled: 769
205-342-2951
21610 Youngblood Pkwy, Mc Calla, AL, 35111
Brookwood High School
Middle-High school. Grades 6 to 12.
Public school
Teacher - student ratio: 1:18
Students enrolled: 1078
205-342-2777
12250 George Richmond Pkwy, Brookwood, AL, 35444
Brookwood Middle School
Middle-High school. Grades 6 to 12.
Public school
Teacher - student ratio: 1:20
Students enrolled: 796
205-342-2748
17021 Brookwood Pkwy, Vance, AL, 35490
GreatSchools ratings are provided by GreatSchools.org and are for reference only. Ratings may not be available for all schools. Please verify school assignments and details with the local school district.
Amenities
Home details
Ready to build
Build the home of your dreams with the The Arden plan by selecting your favorite options. For the best selection, pick your lot in Tannehill today!
Community & neighborhood
In 1978, D.R. Horton broke ground on our first home in Fort Worth, Texas. Since that day, the company has defined its success not by bricks and mortar, but by the satisfaction of the families that make our houses their homes. Our foundation is a single, guiding principle: a value-first dedication to the individual needs of each and every one of our nation’s homebuyers.
From first-time homebuyers to empty nesters, our family of brands provides a home for every stage in life. Our highly-trained, market experts are where you want to live, from New Jersey to Hawaii, providing unique, personalized services tailored to your individual needs. But the real value comes from the quality construction we put into every home, and the peace of mind that comes with a premium-backed warranty from America’s Number One Homebuilder.
We’ve come a long way, and while more people choose our family of brands over any other builder in the country, we never forget the most important thing of all – the families that choose us for their place to call home.
So continue to live out those dreams, America, and know we’ll be here for you every step of the way.
Take the next steps toward your new home
The Arden Plan by D.R. Horton
saved to favorites!
To see all the homes you’ve saved, visit the My Favorites section of your account.
Discover More Great Communities
Select additional listings for more information
We're preparing your brochure
You're now connected with D.R. Horton. We'll send you more info soon.
The brochure will download automatically when ready.
Brochure downloaded successfully
Your brochure has been saved. You're now connected with D.R. Horton, and we've emailed you a copy for your convenience.
The brochure will download automatically when ready.
Way to Go!
You’re connected with D.R. Horton.
The best way to find out more is to visit the community yourself!