Skip main navigation

The Blue Sky Plan

Ready to build

2243 E 164th Avenue, Thornton CO 80602

Home by Meritage Homes

at York Station

Meritage Homes Logo

Last updated 14 hours ago

from
$539,990 What does this Price Range mean?

The Price Range displayed reflects the base price of the homes built in this community.

You get to select from the many different types of homes built by this Builder and personalize your New Home with options and upgrades.
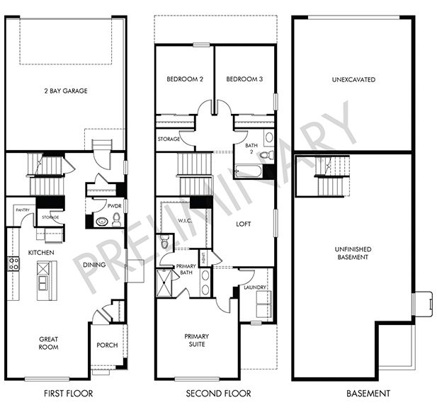
  • 3 BR

  • 2.5 BA

  • 2 GR

  • 2,013 SQ FT

Overview

  • 1 Half Bathroom

  • 2 Bathrooms

  • 2 Car Garage

  • 2 Stories

  • 2013 Sq Ft

  • 3 Bedrooms

  • Green Construction

  • Living Room

  • Primary Bed Upstairs

  • Single Family

The Blue Sky Plan Info

This open-concept floorplan is the perfect spot for entertaining and has a loft for extra space. Convenient upper level laundry room makes chores a breeze.

Neighborhood

Community map

Community location & sales center

2243 E 164th Avenue
Thornton, CO 80602

888-893-1076

Please enter a valid location or select an item from the list.
Driving directions to sales center

Schools near York Station

  • Brighton School District No. 27j
  • Adams 12 Five Star Schools

Actual schools may vary. Contact the builder for more information.

Amenities

Discover the perfect blend of comfort, style, and smart living with Meritage Homes' thoughtfully designed duplexes in our newest community near Denver. These energy-efficient homes are crafted to meet modern needs—featuring open-concept layouts, cutting-edge construction, and low-maintenance living. Nestled in a prime location, residents enjoy easy access to scenic parks, vibrant shopping, and top-rated schools. More info about York Station

Home details

Green program

Setting the standard for Energy Efficiency

Ready to build

Build the home of your dreams with the The Blue Sky plan by selecting your favorite options. For the best selection, pick your lot in York Station today!

Community & neighborhood

Local points of interest

  • Denver Premium Outlets
  • Barr Lake State Park
  • Butterfly Pavilion

Community services & perks

  • HOA fees: Unknown, please contact the builder

Builder details

Meritage Homes

Meritage Homes Logo

Open the door to Life. Built. Better.® with an experienced homebuilder known for quality construction, designer-curated interiors, award-winning energy efficiency and a simplified buying process. Since 1985, Meritage Homes® has delivered more than 180,000 homes across Arizona, California, Colorado, Utah, Texas, Florida, Georgia, North Carolina, South Carolina and Tennessee. Take the next step toward your dream home and discover the Meritage difference.

Get more details

Your free brochure has been sent via email

Request a tour

Community location & sales center
The Blue Sky

York Station
Meritage Homes
2243 E 164th Avenue, Thornton, CO 80602

888-893-1076

In-person tour
Meet with a knowledgeable representative on-site for a guided home tour.

Remote tour
Hop on a video call with a representative to take a virtual walkthrough of this home.

Please be aware the current conditions may impact hours of operation.