The Brookhaven Plan
Ready to build
86 English Barn Way, Hiram GA 30141
Home by Windsong Properties
at Echols Farm

Last updated 02/23/2026
The Price Range displayed reflects the base price of the homes built in this community.
You get to select from the many different types of homes built by this Builder and personalize your New Home with options and upgrades.
3 BR
2 BA
2 GR
1,828 SQ FT

The Brookhaven 1/3
Overview
1 Story
Covered Patio
Dining Room
Family Room
Flex Room
Green Construction
Guest Room
Porch
Primary Bed Downstairs
Single Family
Study
Walk-In Closets
The Brookhaven Plan Info
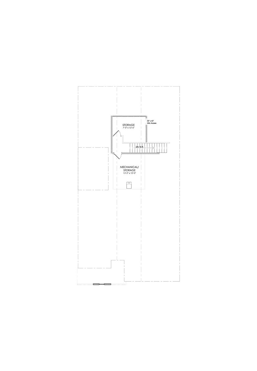
The Brookhaven homeplan offers a thoughtfully designed layout with 3 bedrooms and 2 bathrooms all conveniently located on the main level, providing easy living with added comfort. Spanning 1,828+ square feet, this plan features an open floorplan design enhanced with universal design and accessibility features. The owner’s suite serves as a relaxing retreat with a luxurious bath and a walk-in shower with bench seating. The inviting island kitchen opens to the greatroom and a more formal dining area, perfect for hosting family gatherings or intimate dinners. Outdoor living is elevated with a private side covered porch and a fenced side courtyard retreat, offering a peaceful space to unwind. For additional convenience, the second-floor attic storage is easily accessible via permanent stairs, providing practical storage solutions. The Brookhaven is designed for both entertaining and everyday comfort, making it the ideal home for those seeking style and functionality.
Floor plan center
View floor plan details for this property.
- Floor Plans
- Exterior Images
- Interior Images
- Other Media
Explore custom options for this floor plan.
- Choose Option
- Include Features
Neighborhood

Community location & sales center
86 English Barn Way
Hiram, GA 30141
86 English Barn Way
Hiram, GA 30141
888-434-6119
From I-20 Exit 44 – Thornton Road/ Hwy 278 to the Northwest towards Powder Springs/Hiram for 11.3 miles. Turn right onto Poplar Springs and travel for 1.5 miles. Turn left onto Macland Road and travel .4 miles and Echols Farm is on the right. From Atlanta NE From I-75 N: Exit 260 – Windy Hill Road to the West. Follow Windy Hill Road and Windy Hill/Macland Road approx. 15.6 miles and Echols Farm is on the right.
Nearby schools
Paulding County Schools
Mcgarity Elementary School
Elementary school. Grades PK to 5.
Public school
Teacher - student ratio: 1:13
Students enrolled: 591
770-445-9007
262 Rakestraw Mill Rd, Hiram, GA, 30141
P.b. Ritch Middle School
Middle school. Grades 6 to 8.
Public school
Teacher - student ratio: 1:15
Students enrolled: 755
770-443-1449
60 Old Country Trl, Dallas, GA, 30157
East Paulding High School
High school. Grades 9 to 12.
Public school
Teacher - student ratio: 1:17
Students enrolled: 1905
770-445-5100
3320 E Paulding Dr, Dallas, GA, 30157
Actual schools may vary. We recommend verifying with the local school district, the school assignment and enrollment process.
Amenities
Home details
Green program
Energy Savers
Ready to build
Build the home of your dreams with the The Brookhaven plan by selecting your favorite options today!
Community & neighborhood
Local points of interest
- Downtown Powder Springs
- Historic Downtown Marietta
- SunTrust Park & The Battery
- Arbor Place Mall
- Hiram Pavilion - Featuring Target, Ross & an Array of Shops & Restaurants
- The Home Depot Centers
- Kroger Shopping Centers
- Publix Shopping Centers
- Sprouts Farmers Market& Shops
- The Avenue West Cobb
- Walmart Supercenters
- Pond
- Fishing
Social activities
- Green Meadows Preserve& Community Garden
- Hiram Hounds Dog Park
- Kennesaw Mountain National Battlefield Park
- Northwest Cobb YMCA
- West Cobb Aquatic Center
- West Cobb Senior & Ward Recreation Centers
- Club House
- Activity/ArtStudio
- Billiards
- BocceBallCourt
- ConferenceRoom/Hall
- EventCenter
- GameRoom
- OutdoorFireplace
- Pavillion/Ramada
- PicnicArea
Health and fitness
- Wellstar Cobb Hospital
- Wellstar Kennestone Hospital
- Wellstar Paulding Hospital
- Trails
- FitnessCenter
- Pickleball
- SportsCourts
Community services & perks
- West Cobb Regional Library
- Powder Springs Post Office
- Professional landscape & maintenance of front, rear yards and all common areas including:mowing, edging, fertilizing, weeding, pinestraw and flowers in select areas.
- Yearly termite bond with quarterly inspections. Weekly curbside trash and recycling pickup.
- Gated Community with private streets.
- Park
- CoworkingSpaces
Neighborhood amenities
Fine Food Marketing
1.48 miles away
5470 Amity Cv
Sam's Club
1.59 miles away
4798 Jimmy Lee Smith Pkwy
ALDI
1.72 miles away
5746 Wendy Bagwell Pkwy
Walmart Supercenter
1.84 miles away
4166 Jimmy Lee Smith Pkwy
Walmart Supercenter
2.07 miles away
3615 Charles Hardy Pkwy
Sam's Club Bakery
1.59 miles away
4798 Jimmy Lee Smith Pkwy
GNC
1.66 miles away
4215 Jimmy Lee Smith Pkwy
Walmart Bakery
1.84 miles away
4166 Jimmy Lee Smith Pkwy
Mellow Mushroom
1.30 miles away
5157 Jimmy Lee Smith Pkwy
Popeyes
1.34 miles away
5329 Wendy Bagwell Pkwy
Jim 'n Nick's Bar-B-Q
1.34 miles away
5153 Jimmy Lee Smith Pkwy
Bangkok Cabin
1.34 miles away
5077 Jimmy Lee Smith Pkwy
Cheeseburger Bobbys
1.34 miles away
5077 Jimmy Lee Smith Pkwy
Starbucks
1.45 miles away
4910 Jimmy Lee Smith Pkwy
Starbucks
1.53 miles away
5220 Jimmy Lee Smith Pkwy
Dunkin'
1.62 miles away
4470 Jimmy Lee Smith Pkwy
Dunkin'
3.39 miles away
4100 Macland Rd
Sweet Southern Coffee & Desert
4.20 miles away
4460 Marietta St
Heavenly Fashion & Alteration
0.93 mile away
45 Darbys Crossing Dr
JCPenney
1.20 miles away
5043 Jimmy Lee Smith Pkwy
Gift Spot
1.34 miles away
5337 Wendy Bagwell Pkwy
Bealls
1.53 miles away
5220 Jimmy Lee Smith Pkwy
Hibbett Sports
1.53 miles away
5220 Jimmy Lee Smith Pkwy
Mellow Mushroom
1.30 miles away
5157 Jimmy Lee Smith Pkwy
Chili's
1.43 miles away
5100 Jimmy Lee Smith Pkwy
Hooters
1.44 miles away
5464 Wendy Bagwell Pkwy
Buffalo Wild Wings
1.44 miles away
5000 Jimmy Lee Smith Pkwy
LongHorn Steakhouse
1.48 miles away
4800 Jimmy Lee Smith Pkwy
Please note this information may vary. If you come across anything inaccurate, please contact us.
Windsong Properties was founded upon the idea that the transition from family home to empty nest should be focused on improving your quality of life. Our beautiful new homes are designed with easy living in mind. First floor owner suites, natural light-filled open floor plans and elegant outdoor courtyards are just a few of the luxurious Windsong standards. Come experience how inspired design, thoughtful architecture, enriching amenities and vibrant people in our 55+ communities can enhance your active adult lifestyle. Our mission is to create active adult communities that transform Quality of Life for Empty Nesters. Welcome to Windsong, Where Life’s A Breeze!
Take the next steps toward your new home
The Brookhaven Plan by Windsong Properties
saved to favorites!
To see all the homes you’ve saved, visit the My Favorites section of your account.
Discover More Great Communities
Select additional listings for more information
We're preparing your brochure
You're now connected with Windsong Properties. We'll send you more info soon.
The brochure will download automatically when ready.
Brochure downloaded successfully
Your brochure has been saved. You're now connected with Windsong Properties, and we've emailed you a copy for your convenience.
The brochure will download automatically when ready.
Way to Go!
You’re connected with Windsong Properties.
The best way to find out more is to visit the community yourself!