The Eldora Plan
Ready to build
2243 E 164th Avenue, Thornton CO 80602
Home by Meritage Homes
at York Station
Last updated 5 days ago
The Price Range displayed reflects the base price of the homes built in this community.
You get to select from the many different types of homes built by this Builder and personalize your New Home with options and upgrades.
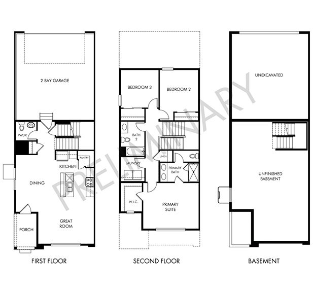
3 BR
2.5 BA
2 GR
1,555 SQ FT

Plan Diagram 1/1
Overview
1 Half Bathroom
2 Stories
Green Construction
Living Room
Primary Bed Upstairs
Single Family
The Eldora Plan Info
Welcoming covered front porch leads into an open home plan for your perfect night in with the family. Includes upstairs laundry, two secondary bedrooms and a large primary walk-in closet for any style.
Floor plan center
View floor plan details for this property.
- Floor Plans
- Exterior Images
- Interior Images
- Other Media
Neighborhood
Community location & sales center
2243 E 164th Avenue
Thornton, CO 80602
2243 E 164th Avenue
Thornton, CO 80602
888-893-1076
Start on I-25 North from central Denver. Take Exit 217A to merge onto E-470 East (a toll road). Continue on E-470 for about 10 miles. Exit at Quebec Street and head north. Turn right onto E 136th Avenue, then left onto Yosemite Street. Follow signs or navigation to the Meritage Homes development near E 144th Avenue and Yosemite Street.
Schools near York Station
- Brighton School District No. 27j
- Adams 12 Five Star Schools
Actual schools may vary. Contact the builder for more information.
Amenities
Home details
Green program
Setting the standard for Energy Efficiency
Ready to build
Build the home of your dreams with the The Eldora plan by selecting your favorite options. For the best selection, pick your lot in York Station today!
Community & neighborhood
Local points of interest
- Denver Premium Outlets
- Barr Lake State Park
- Butterfly Pavilion
Open the door to Life. Built. Better.® with an experienced homebuilder known for quality construction, designer-curated interiors, award-winning energy efficiency and a simplified buying process. Since 1985, Meritage Homes® has delivered more than 180,000 homes across Arizona, California, Colorado, Utah, Texas, Florida, Georgia, North Carolina, South Carolina and Tennessee. Take the next step toward your dream home and discover the Meritage difference.
Take the next steps toward your new home
The Eldora Plan by Meritage Homes
saved to favorites!
To see all the homes you’ve saved, visit the My Favorites section of your account.
Discover More Great Communities
Select additional listings for more information
We're preparing your brochure
You're now connected with Meritage Homes. We'll send you more info soon.
The brochure will download automatically when ready.
Brochure downloaded successfully
Your brochure has been saved. You're now connected with Meritage Homes, and we've emailed you a copy for your convenience.
The brochure will download automatically when ready.
Way to Go!
You’re connected with Meritage Homes.
The best way to find out more is to visit the community yourself!