The Hayden Plan
Ready to build
60 Pine Ridge Drive, Odenville AL 35120
Home by D.R. Horton
at Pine Ridge

Last updated 19 hours ago
The Price Range displayed reflects the base price of the homes built in this community.
You get to select from the many different types of homes built by this Builder and personalize your New Home with options and upgrades.
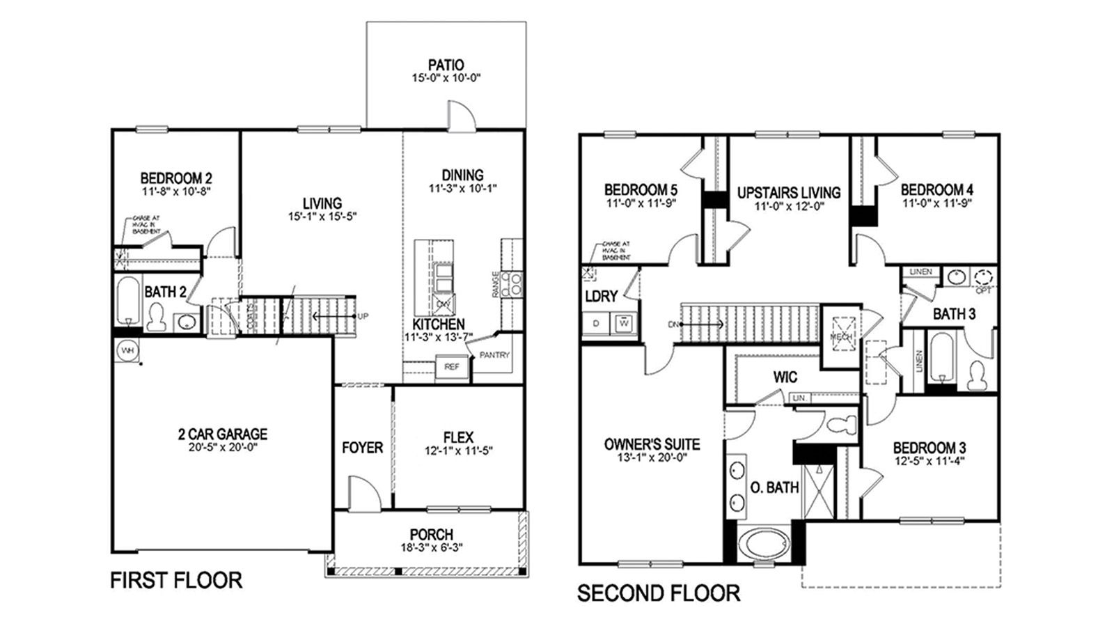
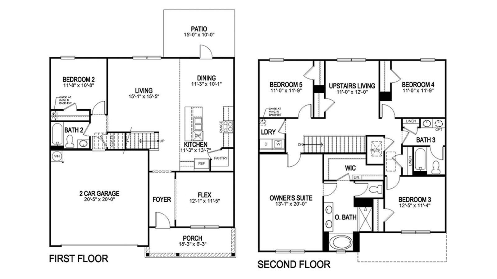
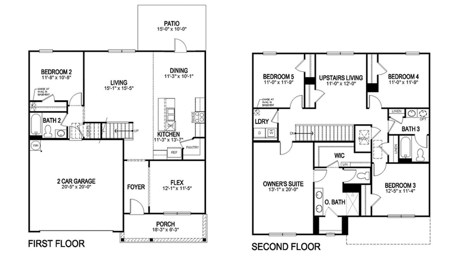
5 BR
3 BA
2 GR
2,511 SQ FT

Elevation 0 1/35
Special offers
Explore the latest promotions at Pine Ridge. Contact D.R. Horton to learn more!
Don't Miss Your Opportunity to Save
Overview
2 Car Garage
2 Stories
2511 Sq Ft
3 Bathrooms
5 Bedrooms
Single Family
The Hayden Plan Info
The Hayden is a spacious two-story plan with 5 bedrooms and 3 bathrooms, covering 2,511 square feet. On the main level, you'll find a versatile flex room near the foyer, perfect for a formal dining area or a convenient home office. The gourmet kitchen boasts an expansive island for added seating, stunning granite countertops, stainless steel appliances, and a generous pantry. It seamlessly connects to the dining space and a roomy living area. Completing the main level is a bedroom with a full bathroom, providing flexibility and convenience for guests or family members. Upstairs, the Primary Bedroom awaits, offering a lavish bath with a shower, private bathroom, double vanities with marble counters, and a spacious walk-in closet. Additionally, the second level comprises three more bedrooms, a full bathroom, a walk-in laundry room, and a loft-style living area, catering to all your family's needs. The Hayden is meticulously finished with high-quality materials and craftsmanship in every corner, showcasing an exceptional attention to detail. You can feel confident in your investment, as it comes with the added assurance of a one-year builder's warranty. Get ready to experience an added level of excitement in your new home, complete with a cutting-edge smart home technology package. This user-friendly package is designed to make it incredibly easy for you to control essential features with just a simple touch, offering you both convenience and modernity. The package includes a
Floor plan center
View floor plan details for this property.
- Floor Plans
- Exterior Images
- Interior Images
- Other Media
Neighborhood
Community location & sales center
60 Pine Ridge Drive
Odenville, AL 35120
60 Pine Ridge Drive
Odenville, AL 35120
888-698-5057
From I20 East, take exit 147 toward Moody. From the left lane, take the ramp to Kelly Creek Road. After 1.7 miles, turn left onto Kerr Road. Turn right onto US-411 North/ Moody Parkway. Follow for 5 miles. Turn left onto Old Springville Road, then left onto Old Margaret Road. Community will be on right.
Schools near Pine Ridge
- St Clair County
Actual schools may vary. Contact the builder for more information.
Amenities
Home details
Ready to build
Build the home of your dreams with the The Hayden plan by selecting your favorite options. For the best selection, pick your lot in Pine Ridge today!
Community & neighborhood
Local points of interest
- Views
Health and fitness
- Trails
Community services & perks
- HOA fees: Unknown, please contact the builder
Neighborhood amenities
Piggly Wiggly
0.57 mile away
100A Council Dr
Odenville Food Mart
0.71 mile away
13518 US Highway 411
Springville S-Mart, Inc
5.10 miles away
19840 US Highway 411
Green2Grocer.com
6.29 miles away
72 Argo Park Dr
Walmart Supercenter
6.65 miles away
160 Springville Sta
Ben-Zees Sweets & Treats
6.35 miles away
221 Majestic Pines Ln
Walmart Bakery
6.65 miles away
160 Springville Sta
Walmart Bakery
9.34 miles away
165 Vaughan Ln
JNRS Sweet Treats
9.92 miles away
1917 Cogswell Ave
Jack's
0.56 mile away
14045 US Highway 411
Subway
0.60 mile away
130 Council Dr
Blue Tequila
0.64 mile away
170 Council Dr
Mi Casita Mexican Restaurant LL
0.64 mile away
170 Council Dr
Domino's
0.68 mile away
13260 US Highway 411
Starbucks
9.37 miles away
2401 Dr John Haynes Dr
Hustle & Grind Coffee Company
9.54 miles away
2248 Moody Pkwy
Daylight Donuts
9.66 miles away
705 Martin St N
7 Brew Coffee
9.77 miles away
2206 Moody Pkwy
Family Dollar Dollar Tree
0.69 mile away
13254 US Highway 411
Walmart Supercenter
6.65 miles away
160 Springville Sta
Mazie Grace Boutique
7.20 miles away
6417 US Highway 11
River Loft Boutique
7.20 miles away
6417 US Highway 11
Family Dollar
7.83 miles away
1005 Crossroads Plaza Dr
Drew Drop Inn
0.70 mile away
1620 County Road 12
Codzilla's Sports Pub LLC
6.51 miles away
8925 Gadsden Hwy
Buffalo Wild Wings
9.75 miles away
290 Vaughan Spur
Please note this information may vary. If you come across anything inaccurate, please contact us.
In 1978, D.R. Horton broke ground on our first home in Fort Worth, Texas. Since that day, the company has defined its success not by bricks and mortar, but by the satisfaction of the families that make our houses their homes. Our foundation is a single, guiding principle: a value-first dedication to the individual needs of each and every one of our nation’s homebuyers.
From first-time homebuyers to empty nesters, our family of brands provides a home for every stage in life. Our highly-trained, market experts are where you want to live, from New Jersey to Hawaii, providing unique, personalized services tailored to your individual needs. But the real value comes from the quality construction we put into every home, and the peace of mind that comes with a premium-backed warranty from America’s Number One Homebuilder.
We’ve come a long way, and while more people choose our family of brands over any other builder in the country, we never forget the most important thing of all – the families that choose us for their place to call home.
So continue to live out those dreams, America, and know we’ll be here for you every step of the way.
Take the next steps toward your new home
The Hayden Plan by D.R. Horton
saved to favorites!
To see all the homes you’ve saved, visit the My Favorites section of your account.
Discover More Great Communities
Select additional listings for more information
We're preparing your brochure
You're now connected with D.R. Horton. We'll send you more info soon.
The brochure will download automatically when ready.
Brochure downloaded successfully
Your brochure has been saved. You're now connected with D.R. Horton, and we've emailed you a copy for your convenience.
The brochure will download automatically when ready.
Way to Go!
You’re connected with D.R. Horton.
The best way to find out more is to visit the community yourself!