The Lakeside Plan
Ready to build
7867 Valor Ridge Way North, Mobile AL 36619
Home by D.R. Horton
at Valor Ridge
Last updated 2 days ago
The Price Range displayed reflects the base price of the homes built in this community.
You get to select from the many different types of homes built by this Builder and personalize your New Home with options and upgrades.
5 BR
3 BA
2 GR
2,100 SQ FT
Claim this listing to update information, get access to exclusive tools and more!

Floorplan 2 1/1
Overview
1 Story
2 Car Garage
2100 Sq Ft
3 Bathrooms
5 Bedrooms
Single Family
The Lakeside Plan Info
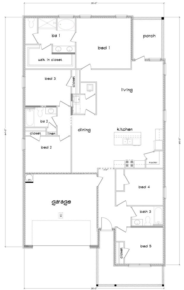
Step into the Lakeside, a new home at our Valor Ridge community in Mobile, Alabama. This thoughtful floorplan features 5-bedrooms, 3-bathrooms in over 2,000 square feet with a 2-car garage. Entering the home, you'll find access to two bedrooms that share a full bathroom. To the opposite side of the home are two bedrooms, a full bathroom with a linen closet and the laundry room. The kitchen boasts a stunning design featuring granite countertops, spacious island bar, stainless-steel appliances and a corner pantry. Seamlessly connected to the family and dining room, this kitchen is ideal for hosting gatherings and enjoying quality time with loved ones. The living area has back door access to a covered porch, further enhancing the relaxing ambiance. The primary bedroom offers ample space and is accompanied by an adjoining ensuite that showcases a double vanity with granite countertop, a generous standing shower, relaxing garden tub and a walk-in closet that can accommodate the most ambitious wardrobe. Like all homes in Valor Ridge, the Lakeside includes a Home is Connected smart home technology package which allows you to control your home with your smart device while near or away. This home is also being built to Gold FORTIFIED HomeTM certification so see your Sales Representative for details. Pictures may be of a similar home and not necessarily of the subject property. Pictures are representational only. Schedule your tour today!
Floor plan center
View floor plan details for this property.
- Floor Plans
- Exterior Images
- Interior Images
- Other Media
Neighborhood
Community location & sales center
7867 Valor Ridge Way North
Mobile, AL 36619
7867 Valor Ridge Way North
Mobile, AL 36619
888-790-3488
Schools near Valor Ridge
- Mobile County Schools
Actual schools may vary. Contact the builder for more information.
Amenities
Home details
Ready to build
Build the home of your dreams with the The Lakeside plan by selecting your favorite options. For the best selection, pick your lot in Valor Ridge today!
Neighborhood amenities
Walmart Neighborhood Market
2.67 miles away
7320 Theodore Dawes Rd
Rouses Market
2.73 miles away
7361 Theodore Dawes Rd
Walmart Supercenter
2.92 miles away
2500 Dawes Rd
Mobile Grocery Delivery
3.23 miles away
2090 Schillinger Rd S
Winn-Dixie
3.34 miles away
5440 Highway 90 W
Walmart Bakery
2.67 miles away
7320 Theodore Dawes Rd
Walmart Bakery
2.92 miles away
2500 Dawes Rd
Flourgirls Bakery
2.98 miles away
2949 Cloverland Ct
Sally's Piece A Cake
3.27 miles away
5638 Three Notch Rd
Walmart Bakery
3.53 miles away
6350 Cottage Hill Rd
Hunt Brothers Pizza
2.09 miles away
3455 Dawes Rd
China One
2.60 miles away
2502 Schillinger Rd S
Foosackly's
2.60 miles away
2502 Schillinger Rd S
Mediterranean Sandwich Co. Wemo
2.60 miles away
2502 Schillinger Rd S
NPC International Inc
2.60 miles away
2502 Schillinger Rd S
Starbucks
3.34 miles away
5159 Rangeline Service Rd N
PJ's Coffee
3.72 miles away
5000 Rangeline Crossing Dr
Tropical Smoothie Cafe
3.72 miles away
5000 Rangeline Crossing Dr
Starbucks
4.68 miles away
1363 Hillcrest Rd
Special Touch Coffee & Prayer Room
4.93 miles away
880 Dawes Rd
Down South Mobile
2.60 miles away
2502 Schillinger Rd S
Zeal Boutique
2.60 miles away
2502 Schillinger Rd S
Trinkits & Treasures LLC
2.80 miles away
5956 Three Notch Rd
N T Lingerie
2.87 miles away
6095 Old Pascagoula Rd
Walmart Supercenter
2.92 miles away
2500 Dawes Rd
PS Taco Company-West Mobile
2.68 miles away
7899 Cottage Hill Rd
Shari Lee's Lounge
2.92 miles away
6291 Spanish Trail Ct
M R Lounge
2.95 miles away
7101 Theodore Dawes Rd
Fonny's Lounge
3.28 miles away
5566 Andrew Rd
Hooters
3.40 miles away
5470 Inn Rd
Please note this information may vary. If you come across anything inaccurate, please contact us.
Builder details
D.R. Horton
In 1978, D.R. Horton broke ground on our first home in Fort Worth, Texas. Since that day, the company has defined its success not by bricks and mortar, but by the satisfaction of the families that make our houses their homes. Our foundation is a single, guiding principle: a value-first dedication to the individual needs of each and every one of our nation’s homebuyers.
From first-time homebuyers to empty nesters, our family of brands provides a home for every stage in life. Our highly-trained, market experts are where you want to live, from New Jersey to Hawaii, providing unique, personalized services tailored to your individual needs. But the real value comes from the quality construction we put into every home, and the peace of mind that comes with a premium-backed warranty from America’s Number One Homebuilder.
We’ve come a long way, and while more people choose our family of brands over any other builder in the country, we never forget the most important thing of all – the families that choose us for their place to call home.
So continue to live out those dreams, America, and know we’ll be here for you every step of the way.
More new homes in Mobile, Alabama
The Lakeside Plan by D.R. Horton
saved to favorites!
To see all the homes you’ve saved, visit the My Favorites section of your account.
Discover More Great Communities
Select additional listings for more information
Way to Go!
An agent will be in contact soon!
