Christian Meadows
The Lowry
1302 Fantail Lane, Ennis, TX, 75119
by Legend Homes
From $307,990 This is the starting price for this plan and is subject to change.
Yearly HOA fees: $209
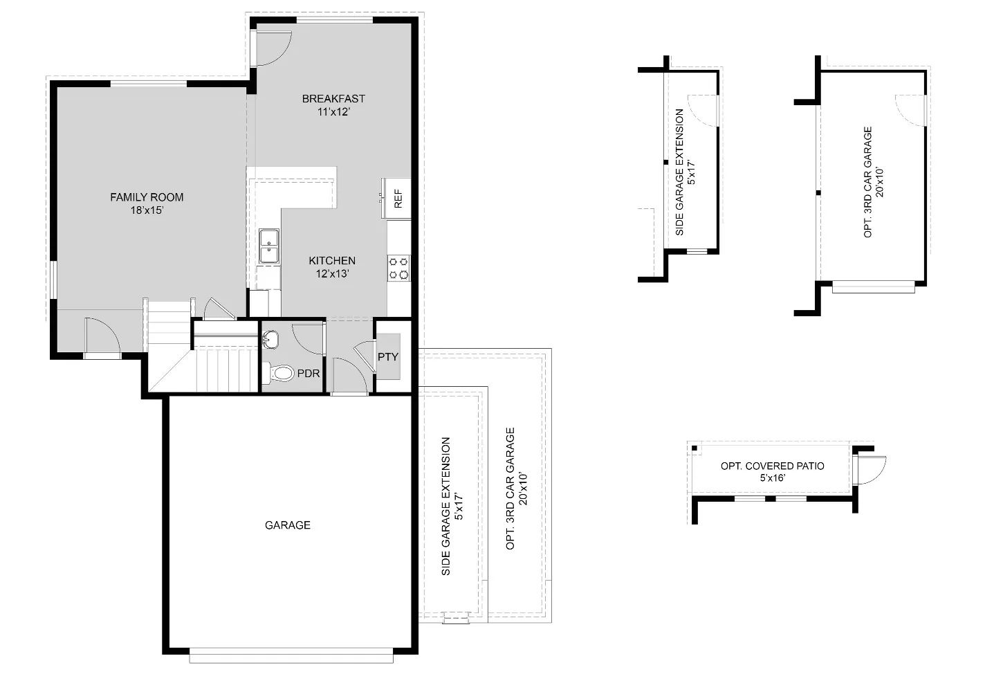
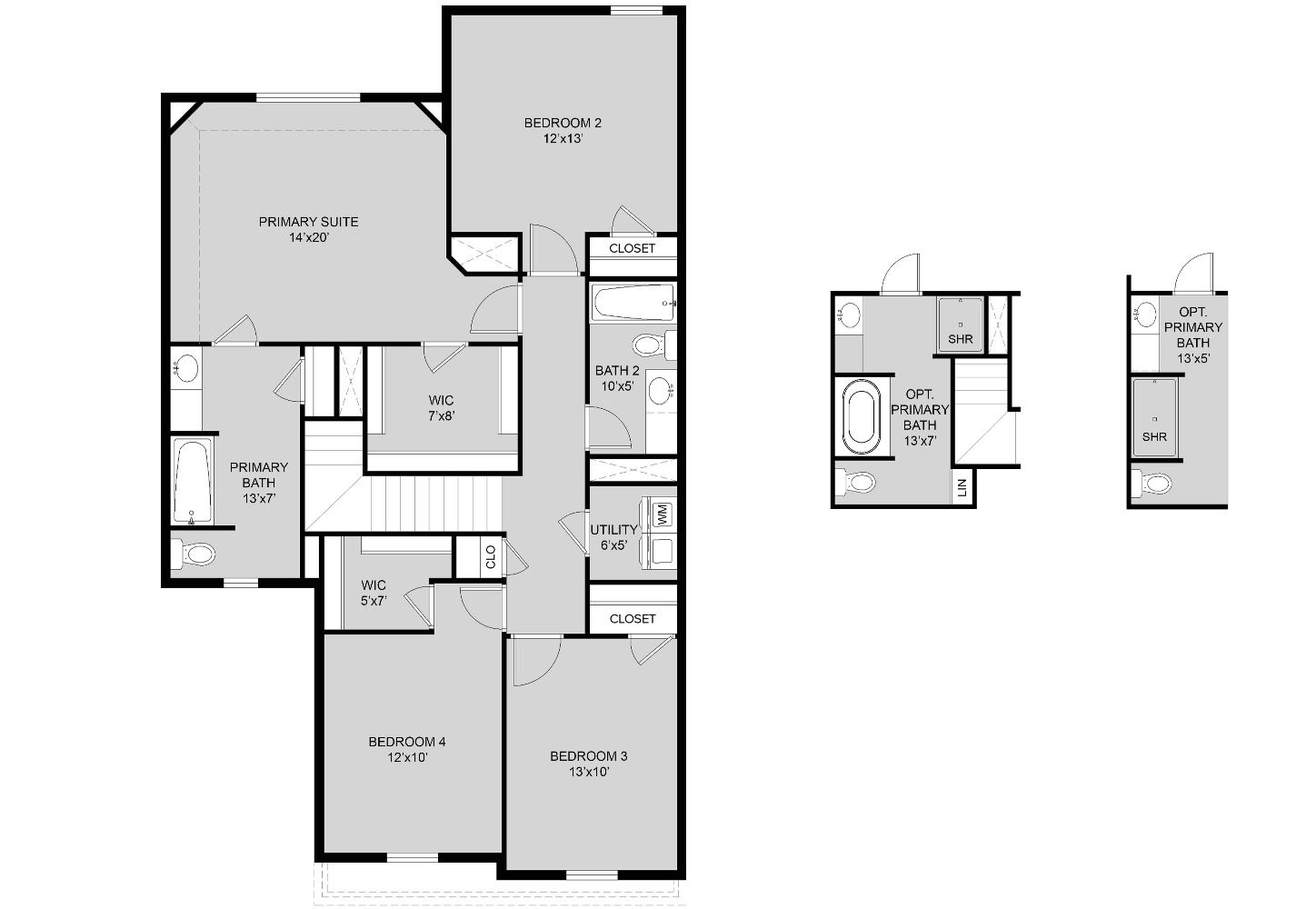
- 4 Beds
- 2.5 Baths
- 2 Car garage
- 1,940 Sq Ft
Overview
Floor plan features
- 1 Half Bathroom
- 2 Stories
- Living Room
- Primary Bed Upstairs
- Single Family
Floor plan description
The Lowry plan is a 2-story home with 4 bedrooms up, 2.5 baths, family room, and dining area. The kitchen offers plenty of counter space including a peninsula with space for seating.
Explore this home
Explore custom options for this floor plan.
Special offers
Explore the latest promotions at Christian Meadows. to learn more!
0$ Down - Down Payment Assistance Program Available!
Legend Homes is proud to partner with Alta Home Lending to offer the Essex NHF Program, providing 3.5% down payment assistance for FHA buyers!
Community highlights
About Christian Meadows
New Floorplans Now Available! Located in Ennis near the DFW metro, Christian Meadows is a new community in Ellis County featuring homes for sale in a low tax rate area. Thanks to its convenient location near Hwy 287, this neighborhood offers simple and easy commutes to and from Dallas, Fort Worth, and Waxahachie via I-45, plus nearby grocery store options like HEB. Parents love Christian Meadows for its Ennis ISD schools and family-friendly environment. More info about Christian Meadows
Neighborhood
Community location
1302 Fantail Lane Ennis, TX 75119
1302 Fantail Lane Ennis, TX 75119
888-687-5629
Directions to Community From I-45 North, Take Exit #253 and travel service road then make a right on Christian Road and Christian Meadows will be on your left. From I-45 South, Take Exit #253, Left at the stop sign, Left on Christian Rd., Christian Meadows will be on your left. Directions to Model Home From I-45 North, Take Exit #253 and travel service road then make a right on Fantail Lane. Model Home will be on the left. From I-45 South, Take Exit #253, Left at the stop sign, Left on Christian Rd., Right on Cardinal, Right on Bobolink, Left on Sonoma Trail, Right on Fantail Lane, 1302 Fantail Lane. Model Home will be on the left.
Amenities
Community & neighborhood
Neighborhood amenities
Lucky Food Service
2.27 miles away
1205 E Ennis Ave
Walmart Supercenter
2.64 miles away
700 E Ennis Ave
La Michoacana Meat Market
3.15 miles away
401 SW Main St
La Grande Supermarket
3.19 miles away
1511 N Kaufman St
Home Grown Market
3.22 miles away
101 S Dallas St
Walmart Bakery
2.64 miles away
700 E Ennis Ave
La 57
2.97 miles away
207 S Kaufman St
Flowers Baking Co
3.17 miles away
2604 N Kaufman St
Southwest Bakery
7.54 miles away
121 E FM 813
Freddy's Frozen Custard & Steakburgers
2.24 miles away
1211 E Ennis Ave
Bubba's BBQ & Steakhouse
2.27 miles away
210 S Interstate 45
McDonald's
2.27 miles away
1203 E Ennis Ave
Chick-fil-A
2.30 miles away
390 N Interstate Highway 45
Cinnabon
2.31 miles away
400 N Interstate 45
Shipley Do-nuts
2.56 miles away
901 E Ennis Ave
Ennis Donuts
2.80 miles away
501 1/2 E Ennis Ave
Starbucks
3.10 miles away
950 E Ennis Ave
Doughnuts Heavenly
3.19 miles away
117 W Ennis Ave
Pop Top Coffee Shop
3.20 miles away
120 N Dallas St
Hibbett Sports
2.46 miles away
201 S Interstate 45
Cato Fashions
2.47 miles away
1012 E Ennis Ave
Walmart Supercenter
2.64 miles away
700 E Ennis Ave
Family Dollar
2.98 miles away
726 N Kaufman St
Bealls
3.10 miles away
201 S Interstate 45
Chili's
2.49 miles away
1006 E Ennis Ave
The Vine at 119
3.22 miles away
119 S Dallas St
Daiquiris at the Palace
3.74 miles away
901 W Ennis Ave
Please note this information may vary. If you come across anything inaccurate, please contact us.
Builder details
Legend Homes
Since 1991, Legend Homes has established a tradition of constructing affordable homes without sacrificing style and luxury. With well over 6,000 residences constructed in the Greater Houston area, we have built a reputation as one of Houston’s most trusted homebuilders. Our homes and communities have been designed to address your every wish. The homes are innovative and built with attention to detail. The communities are established, family-oriented environments that will enrich your lifestyle and enhance the value of your investment. We build in convenient locations near work centers and recreation areas. Children in our communities attend some of the most highly-rated schools in Harris and surrounding counties. Whether you are looking to purchase your first or your fifth home, our commitment to customer satisfaction will be evident in everything we do. From quality construction, to the continuing service we provide after move-in, we are dedicated to creating homes and neighborhoods that you want to come home to again and again.
Take the next steps toward your new home
This listing's information was verified with the builder for accuracy 1 day ago
The Lowry Plan by Legend Homes
saved to favorites!
To see all the homes you’ve saved, visit the My Favorites section of your account.
Discover More Great Communities
Select additional listings for more information
We're preparing your brochure
You're now connected with Legend Homes. We'll send you more info soon.
The brochure will download automatically when ready.
Brochure downloaded successfully
Your brochure has been saved. You're now connected with Legend Homes, and we've emailed you a copy for your convenience.
The brochure will download automatically when ready.
Way to Go!
You’re connected with Legend Homes.
The best way to find out more is to visit the community yourself!