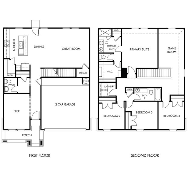
The McCoy (860) Plan
Ready to build
2235 Stetson Ridge Blvd, Seguin TX 78155
Home by Meritage Homes
Last updated 19 hours ago
The Price Range displayed reflects the base price of the homes built in this community.
You get to select from the many different types of homes built by this Builder and personalize your New Home with options and upgrades.
4 BR
2.5 BA
2 GR
2,365 SQ FT

Plan Diagram 1/1
Special offers
Explore the latest promotions at Stetson Ridge. Contact Meritage Homes to learn more!
St. Patrick's Day Sales Event
Overview
1 Half Bathroom
2 Stories
Green Construction
Single Family
The McCoy (860) Plan Info
An expansive covered front porch provides a relaxing setting to gaze at the beautiful Texas hill-country sunset. This plan offers a spacious walk-in pantry along with four generously sized upstairs bedrooms.
Floor plan center
View floor plan details for this property.
- Floor Plans
- Exterior Images
- Interior Images
- Other Media
Neighborhood
Community location & sales center
2235 Stetson Ridge Blvd
Seguin, TX 78155
2235 Stetson Ridge Blvd
Seguin, TX 78155
Schools near Stetson Ridge
- Marion Independent School District
Actual schools may vary. Contact the builder for more information.
Amenities
Home details
Green program
Setting the standard for Energy Efficiency
Ready to build
Build the home of your dreams with the The Mccoy (860) plan by selecting your favorite options. For the best selection, pick your lot in Stetson Ridge today!
Community & neighborhood
Open the door to Life. Built. Better.® with an experienced homebuilder known for quality construction, designer-curated interiors, award-winning energy efficiency and a simplified buying process. Since 1985, Meritage Homes® has delivered more than 180,000 homes across Arizona, California, Colorado, Utah, Texas, Florida, Georgia, North Carolina, South Carolina and Tennessee. Take the next step toward your dream home and discover the Meritage difference.
Take the next steps toward your new home
The McCoy (860) Plan by Meritage Homes
saved to favorites!
To see all the homes you’ve saved, visit the My Favorites section of your account.
Discover More Great Communities
Select additional listings for more information
We're preparing your brochure
You're now connected with Meritage Homes. We'll send you more info soon.
The brochure will download automatically when ready.
Brochure downloaded successfully
Your brochure has been saved. You're now connected with Meritage Homes, and we've emailed you a copy for your convenience.
The brochure will download automatically when ready.
Way to Go!
You’re connected with Meritage Homes.
The best way to find out more is to visit the community yourself!