The Taylor Plan
Ready to build
217 Saddlewood Trails Parkway, Columbiana AL 35051
Home by D.R. Horton

Last updated 2 days ago
The Price Range displayed reflects the base price of the homes built in this community.
You get to select from the many different types of homes built by this Builder and personalize your New Home with options and upgrades.
4 BR
2.5 BA
2 GR
1,613 SQ FT

Elevation 0 1/27
Special offers
Explore the latest promotions at Saddlewood Trails. Contact D.R. Horton to learn more!
Don't Miss Your Opportunity to Save
Overview
1 Half Bathroom
1613 Sq Ft
2 Bathrooms
2 Car Garage
2 Stories
4 Bedrooms
Single Family
The Taylor Plan Info
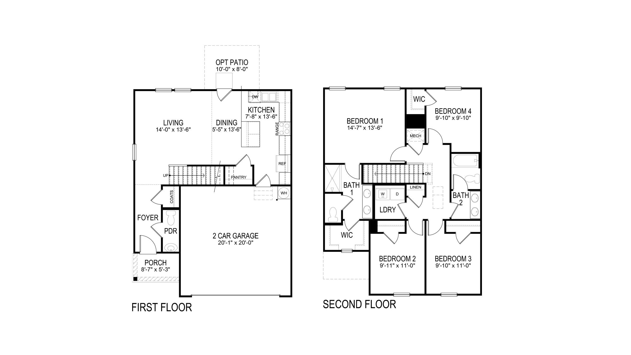
The Taylor residence boasts 4 bedrooms and 2.5 bathrooms within its 1,613 square feet. It presents a dining room and a chef-inspired kitchen, complete with ample cabinet space and a spacious pantry. The kitchen seamlessly connects to a casual dining area and a generously sized living room. Additionally, there is a powder room on the main level. Moving to the second floor, the expansive Bedroom One suite offers a luxurious bathroom with a walk-in shower, double vanities, and a sizable walk-in closet. The second level also includes 3 more bedrooms, another full bathroom, and a laundry room. Throughout the home, you will find top-quality materials and craftsmanship, with meticulous attention to detail, along with a one-year builders warranty. Moreover, your new home comes equipped with our smart home technology package! A D.R. Horton Smart Home is furnished with cutting-edge technology, including a Honeywell-manufactured Z-Wave programmable thermostat, a Kwikset-manufactured Z-Wave door lock, an Eaton Corporation-manufactured Z-Wave wireless switch, a Qolsys, Inc. touchscreen Smart Home control device, an automation platform from Alarm.com, a SkyBell video doorbell, and an Amazon Echo and Amazon Echo Dot. For more information, please consult a New Home Sales Agent.
Floor plan center
View floor plan details for this property.
- Floor Plans
- Exterior Images
- Interior Images
- Other Media
Neighborhood
Community location & sales center
217 Saddlewood Trails Parkway
Columbiana, AL 35051
217 Saddlewood Trails Parkway
Columbiana, AL 35051
888-928-3579
From Interstate 65 S towards Montgomery, take exit 238 toward Saginaw. Turn left onto US-31 S/1st St S. Go about 2 miles and turn left onto Co Rd 26. Go 9 miles and turn left onto AL-70 E. Go 0.2 miles and turn left into the Saddlewood Trail community. The model home will be on your left.
Schools near Saddlewood Trails
- Shelby County Schools
Actual schools may vary. Contact the builder for more information.
Amenities
Home details
Ready to build
Build the home of your dreams with the The Taylor plan by selecting your favorite options. For the best selection, pick your lot in Saddlewood Trails today!
Community & neighborhood
Local points of interest
- Views
Health and fitness
- Trails
Community services & perks
- HOA fees: Unknown, please contact the builder
Neighborhood amenities
Piggly Wiggly
1.69 miles away
211 W College St
Cj's Country Store
6.02 miles away
5845 Chelsea Rd
Publix
6.56 miles away
90 Marketplace Cir
Beeswax Outdoor Inc
6.67 miles away
25747 Highway 145
Walmart Supercenter
6.95 miles away
5100 Highway 31
Walmart Bakery
6.95 miles away
5100 Highway 31
Flowers Discount Bakery Store
7.81 miles away
730 George Roy Pkwy
Delicious Bakery
8.52 miles away
844 Highway 31 S
McDonald's
1.40 miles away
301 W College St
Pizza Star
1.40 miles away
295 Columbiana Sq
Sanpeggio's Pizza
1.40 miles away
295 Columbiana Sq
Oaxaca Mexican Grill
1.56 miles away
218 W College St
Taco Bell
1.56 miles away
218 W College St
Starbucks
9.83 miles away
345 S Colonial Dr
Starbucks
9.98 miles away
250 S Colonial Dr
Podos Ink
6.56 miles away
56 Marketplace Cir
Walmart Supercenter
6.95 miles away
5100 Highway 31
All Things New Boutique LLC
8.59 miles away
321 Kilkerran Ln
Family Dollar
8.68 miles away
8154 Highway 31
Applebee's Grill + Bar
7.82 miles away
89 Chesser Plantation Lane
LongHorn Steakhouse
9.96 miles away
30 S Colonial Pkwy
Please note this information may vary. If you come across anything inaccurate, please contact us.
In 1978, D.R. Horton broke ground on our first home in Fort Worth, Texas. Since that day, the company has defined its success not by bricks and mortar, but by the satisfaction of the families that make our houses their homes. Our foundation is a single, guiding principle: a value-first dedication to the individual needs of each and every one of our nation’s homebuyers.
From first-time homebuyers to empty nesters, our family of brands provides a home for every stage in life. Our highly-trained, market experts are where you want to live, from New Jersey to Hawaii, providing unique, personalized services tailored to your individual needs. But the real value comes from the quality construction we put into every home, and the peace of mind that comes with a premium-backed warranty from America’s Number One Homebuilder.
We’ve come a long way, and while more people choose our family of brands over any other builder in the country, we never forget the most important thing of all – the families that choose us for their place to call home.
So continue to live out those dreams, America, and know we’ll be here for you every step of the way.
Take the next steps toward your new home
The Taylor Plan by D.R. Horton
saved to favorites!
To see all the homes you’ve saved, visit the My Favorites section of your account.
Discover More Great Communities
Select additional listings for more information
We're preparing your brochure
You're now connected with D.R. Horton. We'll send you more info soon.
The brochure will download automatically when ready.
Brochure downloaded successfully
Your brochure has been saved. You're now connected with D.R. Horton, and we've emailed you a copy for your convenience.
The brochure will download automatically when ready.
Way to Go!
You’re connected with D.R. Horton.
The best way to find out more is to visit the community yourself!