Thimbleberry Plan
Ready to build
3887 SW 38th Street, Gresham OR 97080
Home by Taylor Morrison

Last updated 2 days ago
The Price Range displayed reflects the base price of the homes built in this community.
You get to select from the many different types of homes built by this Builder and personalize your New Home with options and upgrades.
$50,000
3 BR
2.5 BA
2 GR
1,750 SQ FT

Poppy Thimbleberry Building Elevation A 1/10
Special offers
Explore the latest promotions at Piper Ridge Townhomes. Contact Taylor Morrison to learn more!
Conventional Fixed Rate
Overview
1 Half Bathroom
2 Stories
Dining Room
Guest Room
Loft
Primary Bed Upstairs
Townhome
Thimbleberry Plan Info
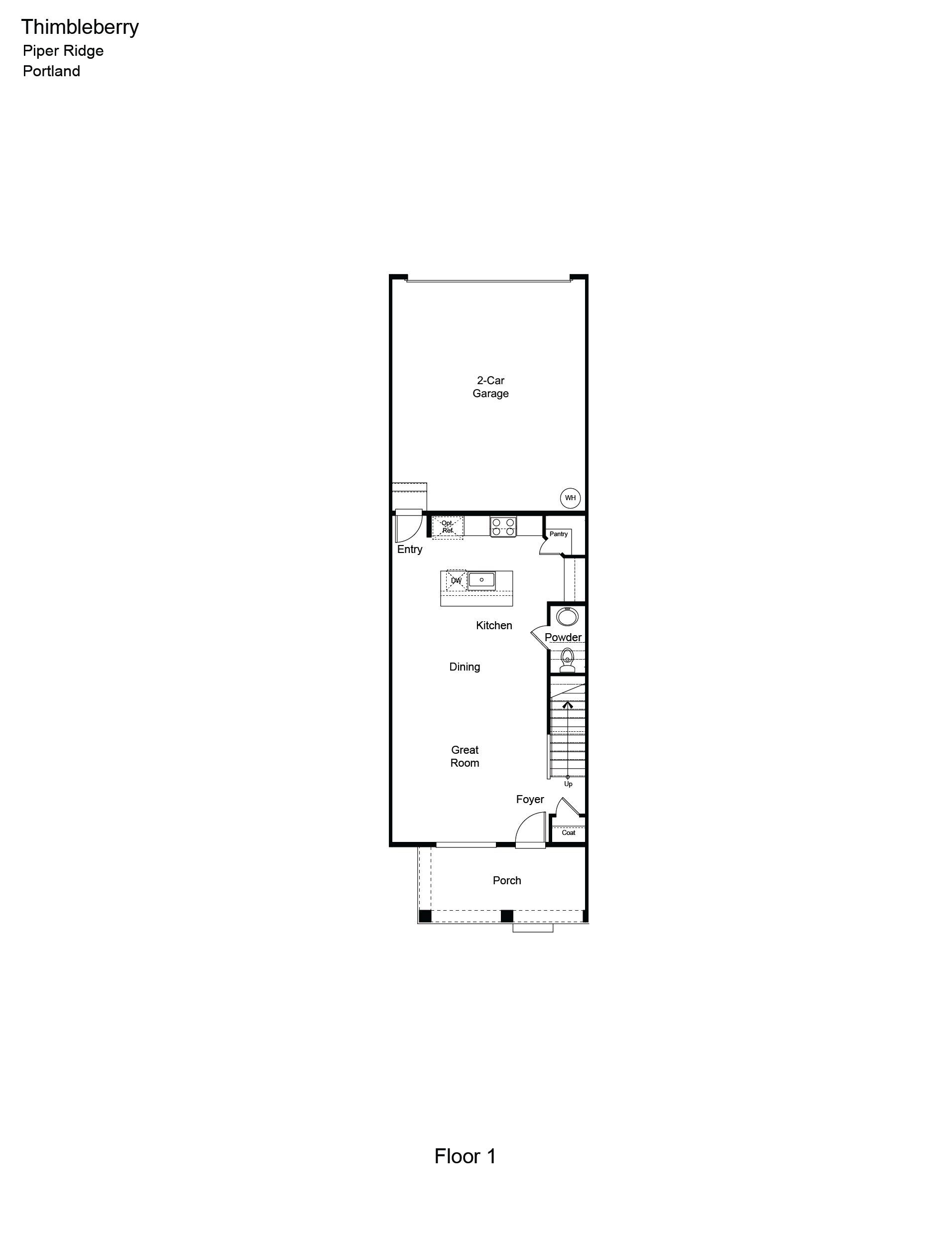
Crafted for the way you live, this 2-story home features 3 bedrooms, 2.5 bathrooms, a 2-car garage and 1,750 square feet of beautiful, open-concept living space. Find a welcoming foyer that leads to a sleek kitchen with an island, seamlessly connecting to the dining area, spacious great room and outdoor patio, just right for everything from quiet evenings to hosting friends. A convenient powder room sits near the garage entry for everyday ease. Upstairs, 2 bedrooms share 1 bathroom, while a laundry room adds practical convenience. A versatile loft offers space to lounge, play or unwind, and just beyond, a private deck invites you to take in fresh air or catch a sunset. At the end of the day, retreat to the tucked-away primary suite with its generous walk-in closet and spa-like bathroom—your own peaceful haven.
Floor plan center
View floor plan details for this property.
- Floor Plans
- Exterior Images
- Interior Images
- Other Media
Explore custom options for this floor plan.
- Choose Option
- Include Features
Neighborhood
Community location & sales center
3887 SW 38th Street
Gresham, OR 97080
3887 SW 38th Street
Gresham, OR 97080
888-346-5835
From OR-217 South: Take exit for I-5 South towards Salem. Take Exit 288 for I-205 North toward Oregon City. Take Exit 17 toward SE Foster Road. Turn right onto SE Woodstock Blvd and continue for approximately 4.3 miles. Turn left onto SE Richey Road. Turn left onto SW Phyllis Avenue, then turn right onto SW 38th Street. The sales office will be on your left.
Nearby schools
Centennial School District
Pleasant Valley Elementary School
Elementary school. Grades KG to 5.
Public school
Teacher - student ratio: 1:17
Students enrolled: 299
503-762-3209
17625 Se Foster Rd, Gresham, OR, 97080
Centennial Middle School
Middle school. Grades 6 to 8.
Public school
Teacher - student ratio: 1:21
Students enrolled: 876
503-762-3206
17650 Se Brooklyn St, Portland, OR, 97236
Centennial High School
High school. Grades 9 to 12.
Public school
Teacher - student ratio: 1:23
Students enrolled: 1756
503-762-6180
3505 Se 182nd Ave, Gresham, OR, 97030
GreatSchools ratings are provided by GreatSchools.org and are for reference only. Ratings may not be available for all schools. Please verify school assignments and details with the local school district.
Amenities
Home details
Ready to build
Build the home of your dreams with the Thimbleberry plan by selecting your favorite options. For the best selection, pick your lot in Piper Ridge Townhomes today!
Community & neighborhood
Neighborhood amenities
Pleasant Valley Market
0.87 mile away
16880 SE Foster Rd
Walmart Neighborhood Market
1.30 miles away
3900 W Powell Blvd
Safeway
1.34 miles away
1001 SW Highland Dr
US Market
2.41 miles away
17620 SE Division St
Supermercados Mexico
2.42 miles away
17420 SE Division St
Walmart Bakery
1.30 miles away
3900 W Powell Blvd
Bodybuilding Wholesale
2.64 miles away
14812 SE Powell Blvd
Sugar Cubed Cakes
2.77 miles away
101 N Main Ave
GNC
2.81 miles away
510 NW Eastman Pkwy
Jla Health Stop
3.17 miles away
11123 SE Alexander Ave
My Boonkrong Thai Inc
1.27 miles away
3015 SW Wallula Ave
Kumkang Corp
1.32 miles away
1064 SW Highland Dr
Yami Sushi & Teriyaki
1.32 miles away
1064 SW Highland Dr
High Kick Cafe
1.37 miles away
901 SW Highland Dr
Joy Teriyaki
1.37 miles away
901 SW Highland Dr
East Portland Coffee Roasters
1.21 miles away
5349 SE Jenne Rd
Starbucks
1.34 miles away
1001 SW Highland Dr
Quantum Coffee LLC
1.59 miles away
15444 SE Knapp Dr
Ka Mana Wana Coffee
1.90 miles away
17100 SE Rhone St
Caffeinated Culture
2.41 miles away
18145 SE Division St
Hardkor Sportswear
1.31 miles away
16043 SE Gaibler Ln
Almost Ethereal Boutique LLC
2.38 miles away
20210 SE Delia St
Rosemary's Creation LLC
2.42 miles away
17410 SE Division St
Modern Match Inc
2.44 miles away
2951 NW Division St
Ross Dress For Less
2.64 miles away
300 NW Eastman Pkwy
Cedarville Inn
1.32 miles away
3659 W Powell Loop
Highland Pub & Brewery
1.49 miles away
4225 SE 182nd Ave
Oasis Saloon LLC
1.73 miles away
17102 SE Powell Blvd
Pub 181
2.41 miles away
18415 SE Division St
Rockwood Bar
2.46 miles away
2410 SE 182nd Ave
Please note this information may vary. If you come across anything inaccurate, please contact us.
From start to finish, we create a seamless and inspired homebuilding experience for our homebuyers because we understand that your home is the most important home we can build. At Taylor Morrison, we work to earn your trust by providing the resources, support and deep industry experience to inspire you, and help you make educated decisions about your most important purchase. It’s this trust that earned Taylor Morrison the recognition of being America’s Most Trusted® Home Builder for 10 years in a row. We approach each home with a discerning eye, ensuring we select locations and amenities that fit for our homebuyers’ lifestyles. We want your home to be a place where you create a lifetime of lasting memories. With more than 100 years of experience building a lifetime of memories for our homebuyers, you can rest assured we’ll build the right home for you.
Take the next steps toward your new home
Thimbleberry Plan by Taylor Morrison
saved to favorites!
To see all the homes you’ve saved, visit the My Favorites section of your account.
Discover More Great Communities
Select additional listings for more information
We're preparing your brochure
You're now connected with Taylor Morrison. We'll send you more info soon.
The brochure will download automatically when ready.
Brochure downloaded successfully
Your brochure has been saved. You're now connected with Taylor Morrison, and we've emailed you a copy for your convenience.
The brochure will download automatically when ready.
Way to Go!
You’re connected with Taylor Morrison.
The best way to find out more is to visit the community yourself!