Vail Plan
Ready to build
4493 Parkline Street, Timnath CO 80547
Home by DRB Homes

Last updated 22 hours ago
The Price Range displayed reflects the base price of the homes built in this community.
You get to select from the many different types of homes built by this Builder and personalize your New Home with options and upgrades.
4 BR
2.5 BA
2 GR
2,403 SQ FT

Vail-Elevation A 1/6
Overview
1 Half Bathroom
2 Bathrooms
2 Car Garage
2 Stories
2403 Sq Ft
4 Bedrooms
Basement
Primary Bed Upstairs
Single Family
Vail Plan Info
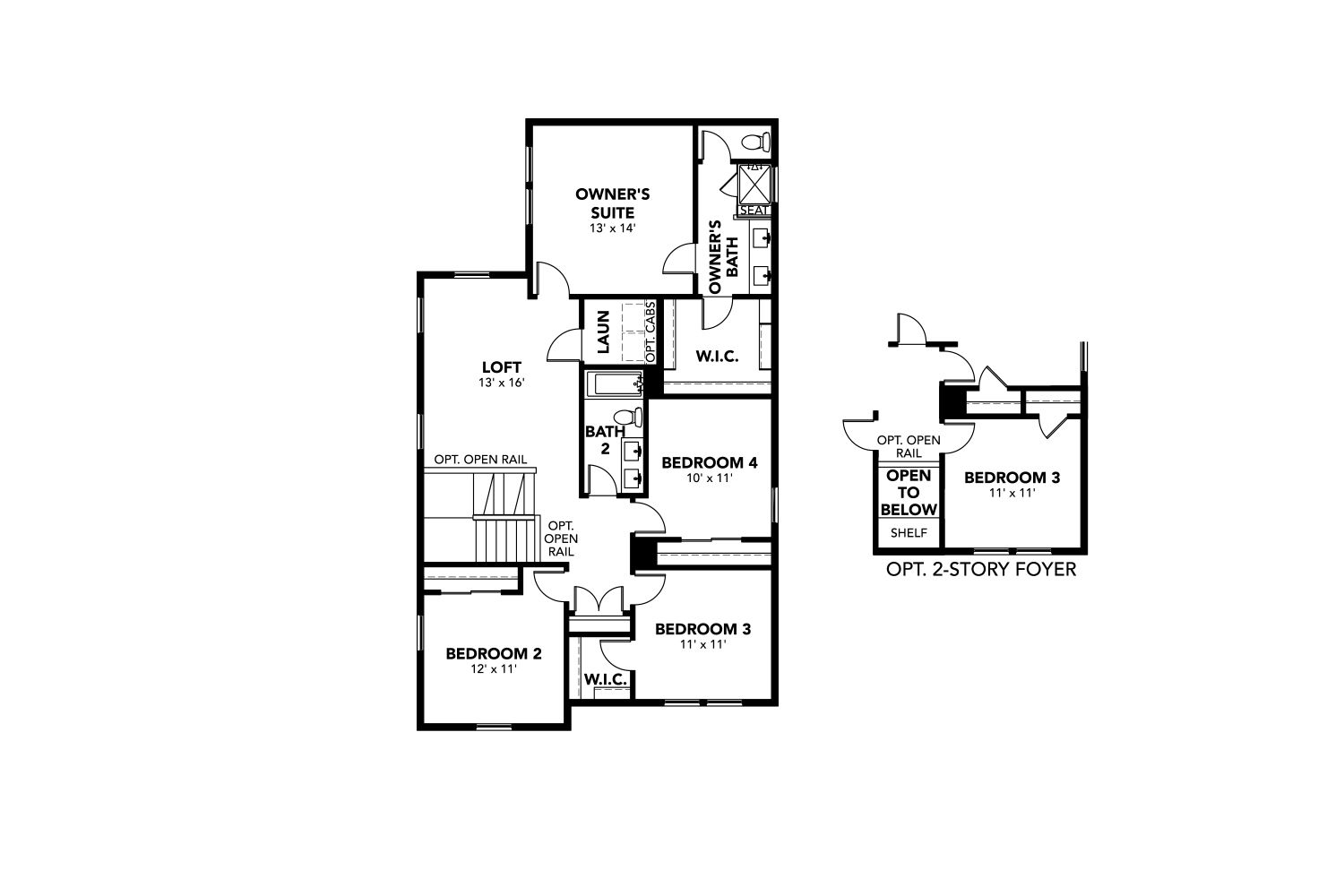
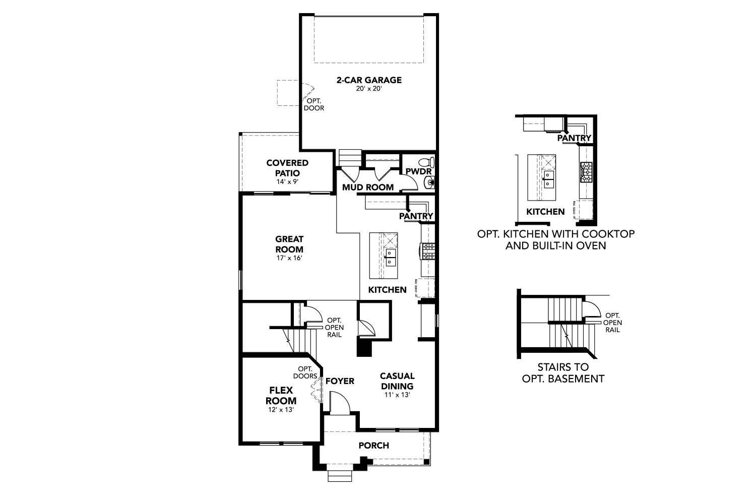
The Vail floorplan offers 2,403 square feet of stylish and functional living space, thoughtfully designed for flexibility and comfort. On the main level, enjoy an open-concept layout where the great room seamlessly connects to the kitchen, creating a bright and welcoming space for everyday living and entertaining. A dedicated dining area adds a formal touch, while a spacious flex room offers endless possibilities—perfect for a home office, playroom, or guest space. Upstairs, you’ll find three generously sized bedrooms plus a large loft, ideal for a second living area, study zone, or media room. The private primary suite provides a relaxing retreat with plenty of space and comfort. The home also includes a 2-car attached garage for added convenience and storage. Looking for more room? Add the optional unfinished basement for future expansion, or choose to finish it with an additional bedroom and living space tailored to your needs.
Floor plan center
View floor plan details for this property.
- Floor Plans
- Exterior Images
- Interior Images
- Other Media
Neighborhood
Community location & sales center
4493 Parkline Street
Timnath, CO 80547
4493 Parkline Street
Timnath, CO 80547
888-443-8841
Driving north from Denver on I-25, take Exit 265 at Harmony Road. Turn right onto E. Harmony Road and head east for 1.3 miles. Turn left onto Timnath Lakes Blvd and then Left on Pinedale Drive. Turn left at Parkline Street and the model is the first home on the right.
Schools near Timnath Lakes
- Poudre School District
Actual schools may vary. Contact the builder for more information.
Amenities
Home details
Ready to build
Build the home of your dreams with the Vail plan by selecting your favorite options. For the best selection, pick your lot in Timnath Lakes today!
Community & neighborhood
Local points of interest
- Greenbelt
- Lake
Health and fitness
- Trails
Community services & perks
- HOA fees: Unknown, please contact the builder
- Playground
- Park
Let DRB Homes put decades of industry experience to work for you. We understand that building a new home is not a one-size-fits-all process or journey; get ready to personalize your home to meet your unique needs. You can start by exploring the full portfolio of our most popular floor plans, all available in our new home communities across the region.
Our award-winning team is backed by the DRB Group, a growing, dynamic organization that includes two residential builder brands, a title company, and a residential development services branch providing entitlement, development and construction services. DRB Group's complete spectrum of services operates in 14 states and 35 markets -East Coast to Arizona, Colorado, Texas, and beyond.
Our DRB team will work with you every step of the way. From the on-site salespeople you meet with to the construction crew laying the foundation for your home — we're all working toward the same goal. The same is true for the members of our leadership team, who oversee the entire operation and ensure a seamless process.
TrustBuilder reviews
Take the next steps toward your new home
Vail Plan by DRB Homes
saved to favorites!
To see all the homes you’ve saved, visit the My Favorites section of your account.
Discover More Great Communities
Select additional listings for more information
We're preparing your brochure
You're now connected with DRB Homes. We'll send you more info soon.
The brochure will download automatically when ready.
Brochure downloaded successfully
Your brochure has been saved. You're now connected with DRB Homes, and we've emailed you a copy for your convenience.
The brochure will download automatically when ready.
Way to Go!
You’re connected with DRB Homes.
The best way to find out more is to visit the community yourself!