Venice Plan
Ready to build
155 Vinca Circle NW, Kennesaw GA 30144
Home by Brock Built

Last updated 2 days ago
The Price Range displayed reflects the base price of the homes built in this community.
You get to select from the many different types of homes built by this Builder and personalize your New Home with options and upgrades.
2 BR
2 BA
2 GR
1,950 SQ FT

Exterior 1/6
Overview
1 Story
1950 Sq Ft
2 Bathrooms
2 Bedrooms
2 Car Garage
Covered Patio
Family Room
Flex Room
Porch
Single Family
Sun Room
Walk-In Closets
Venice Plan Info
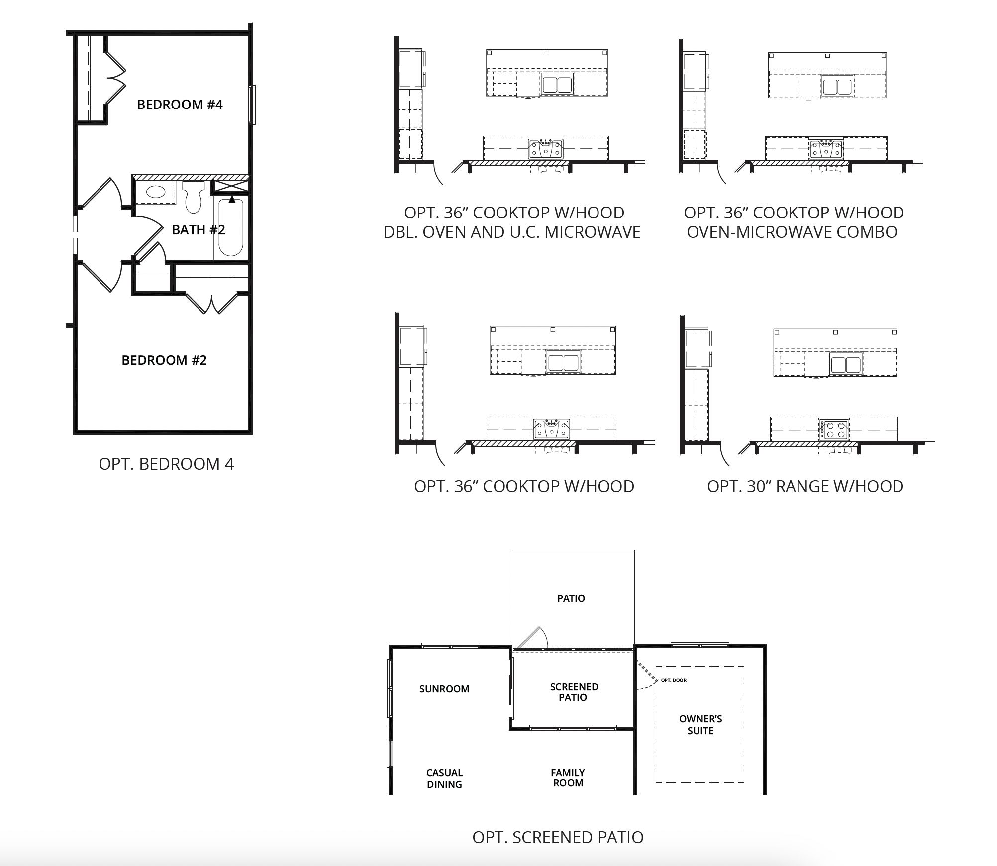
Venice (1950 sq. ft.) is a home with 2 bedrooms, 2 bathrooms and 2-car garage. Features include covered patio, family room, flex room, porch, sun room and walk-in closets.
Floor plan center
View floor plan details for this property.
- Floor Plans
- Exterior Images
- Interior Images
- Other Media
Neighborhood
Community location & sales center
155 Vinca Circle NW
Kennesaw, GA 30144
155 Vinca Circle NW
Kennesaw, GA 30144
888-989-5967
Schools near The Reserve at Bells Ferry
- Cobb County School District
Actual schools may vary. Contact the builder for more information.
Amenities
Home details
Ready to build
Build the home of your dreams with the Venice plan by selecting your favorite options today!
Community & neighborhood
Social activities
- BBQAreas
- Pavillion/Ramada
- PicnicArea
Health and fitness
- Trails
- Pickleball
Community services & perks
- HOA fees: Unknown, please contact the builder
- DogPark
- Garden
Take the next steps toward your new home
Venice Plan by Brock Built
saved to favorites!
To see all the homes you’ve saved, visit the My Favorites section of your account.
Discover More Great Communities
Select additional listings for more information
We're preparing your brochure
You're now connected with Brock Built. We'll send you more info soon.
The brochure will download automatically when ready.
Brochure downloaded successfully
Your brochure has been saved. You're now connected with Brock Built, and we've emailed you a copy for your convenience.
The brochure will download automatically when ready.
Way to Go!
You’re connected with Brock Built.
The best way to find out more is to visit the community yourself!