Beacon Pointe
Wayman
Saratoga Springs, UT, 84045
by David Weekley Homes
From $629,990 This is the starting price for this plan and is subject to change.
This community has HOA fees
- 2 Beds
- 2.5 Baths
- 2 Car garage
- 2,183 Sq Ft
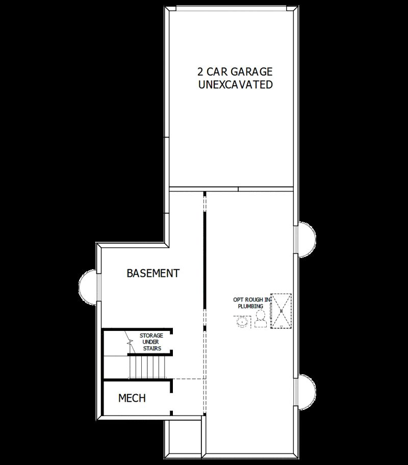
Overview
Floor plan features
- 1 Half Bathroom
- 2 Stories
- Basement
- Primary Bed Downstairs
- Single Family
Hot home
Floor plan description
2br, 2.5ba, 2gr: Energy efficiency, individual privacy and elegant gathering spaces grace The Wayman floor plan by David Weekley Homes in Beacon Pointe.
Explore this home
Explore custom options for this floor plan.
Special offers
Explore the latest promotions at Beacon Pointe.
Enjoy a move-in package or starting low rate as low as 2.99%
Enjoy a move-in package or starting low rate as low as 2.99%. Offer valid March, 31, 2026 to June, 1, 2026. This offer runs through 06/01/2026.
Community highlights
Community amenities
Basketball
Club House
Community Center
Lake
Park
Playground
Pool
Trails
About Beacon Pointe
Award-winning new homes from David Weekley Homes are coming soon to the new phase of Beacon Pointe! Located midway between the Salt Lake City and Provo-Orem metro areas, this vibrant Saratoga Springs, Utah, community will offer innovative rear-load floor plans situated on 45- to 55-foot homesites. Here, you’ll bask in the beautiful natural scenery while enjoying the best in Design, Choice and Service from a top Salt Lake City home builder, along with:•Lakeview homesites available•Rear-load garages available•Front and back yard landscaping, unfinished basements, and full fencing included•Swimming pool, pickleball court and pavilion•Convenient to Utah Lake•Proximity to Saratoga Hot Springs•Nearby Saratoga Springs Utah Temple•Students attend Alpine School District schoolsFor more information,...
Neighborhood
Community location & sales center
Saratoga Springs, UT 84045
Saratoga Springs, UT 84045
From I-15 going South:Take exit 288 from I-15 S Turn right onto UT-140 W/14600 S Turn left onto Porter Rockwell Blvd/Porter Rockwell Blvd Trl Use the left onto Redwood Rd Turn right onto UT-85 Follow Mountain View to W Halvoresen Pkwy/Halvorsen Pkwy Turn left onto W Halvoresen Pkwy/Halvorsen Pkwy From I-15 Going North:Take exit 278 for UT-145/Main St toward American Fork. Turn Left onto UT-145 W. Pioneer Crossing Turn left onto N 8000 W/S Center St N 8000 W/S Center St turns right and becomes W 7350 N St Continue onto Saratoga Rd Continue onto Pony Express Parkway At the traffic circle, take the 2nd exit and stay on Pony Express Parkway Turn left onto Mountain View/Mountain View Corridor Turn left onto W Halvoresen Pkwy/Halvorsen Pkwy
Nearby schools
Alpine District
Saratoga Shores Elementary School
Elementary-Middle school. Grades PK to 6.
Public school
Teacher - student ratio: 1:25
Students enrolled: 782
801-610-8716
1415 S Parkside Dr, Saratoga Spgs, UT, 84045
Sage Hills Elementary School
Elementary-Middle school. Grades KG to 6.
Public school
Teacher - student ratio: 1:26
Students enrolled: 943
801-610-8723
3033 S Swainson Ave, Saratoga Spgs, UT, 84045
Springside Elementary School
Elementary-Middle school. Grades KG to 6.
Public school
Teacher - student ratio: 1:27
Students enrolled: 735
801-610-8732
694 S Highpoint Dr, Saratoga Spgs, UT, 84045
Vista Heights Middle School
Middle-High school. Grades 7 to 9.
Public school
Teacher - student ratio: 1:27
Students enrolled: 1519
801-610-8770
484 W Pony Express Pkwy, Saratoga Spgs, UT, 84045
Lake Mountain Middle School
Middle-High school. Grades 7 to 9.
Public school
Teacher - student ratio: 1:27
Students enrolled: 1412
801-610-8780
1058 S Old Farm Rd, Saratoga Springs, UT, 84045
Westlake High School
High school. Grades 10 to 12.
Public school
Teacher - student ratio: 1:27
Students enrolled: 2659
801-610-8815
99 N 200 W, Saratoga Spgs, UT, 84045
GreatSchools ratings are provided by GreatSchools.org and are for reference only. Ratings may not be available for all schools. Please verify school assignments and details with the local school district.
Amenities
Community & neighborhood
Local points of interest
- Lake
Social activities
- Club House
Health and fitness
- Pool
- Trails
- Basketball
Community services & perks
- Local Shopping
- Playground
- Park
- Community Center
Neighborhood amenities
Smith's Marketplace
2.11 miles away
689 N Redwood Rd
Ridleys Family Markets Inc
2.33 miles away
1557 E Eagle Mountain Blvd
Costco Wholesale
2.55 miles away
1083 N Redwood Rd
Bishops' Storehouse
2.59 miles away
142 W Medical Dr
Home Storage Center
2.59 miles away
142 W Medical Dr
Walmart Bakery
3.05 miles away
136 W Crossroads Blvd
Lehi Bakery
5.34 miles away
172 W Main St
Square Donut LLC
5.34 miles away
172 W Main St
Four Foods Group
5.59 miles away
1384 E Timpanogos Hwy
KFC
1.32 miles away
1378 N Exchange Dr
McDonald's
1.32 miles away
173 E Crossroads Blvd
Wingstop
1.32 miles away
1140 N Redwood Rd
Zao Asian Cafe-Saratoga Springs
1.32 miles away
61 W Abigail Ln
Scooter's Coffeehouse
1.53 miles away
2157 N Redwood Rd
Scooter's Coffeehouse
1.53 miles away
2157 N Redwood Rd
Starbucks
1.87 miles away
4045 E Pony Express Pkwy
Starbucks
2.11 miles away
689 N Redwood Rd
Beans & Brews
2.17 miles away
717 N Redwood Rd
Dutch Bros Coffee
2.48 miles away
963 N Redwood Rd
Beau Femme
2.12 miles away
1771 S Range Rd
Costco Wholesale
2.55 miles away
1083 N Redwood Rd
maurices
2.98 miles away
1380 N Redwood Rd
Claire's Inside Walmart
3.05 miles away
136 W Crossroads Blvd
Walmart Supercenter
3.05 miles away
136 W Crossroads Blvd
Star Saloon Tavern
2.00 miles away
466 N Redwood Rd
Mint Facial Bar
5.72 miles away
380 E Main St
Scorez Sports Bar
5.75 miles away
571 W State St
Buffalo Wild Wings
6.59 miles away
92 N 1200 E
Midcity Lounge American Fork
6.62 miles away
484 N 950 W
Please note this information may vary. If you come across anything inaccurate, please contact us.
Builder details
David Weekley Homes

David Weekley Homes was founded in 1976 in Houston, Texas, and we have since grown to become one of the largest national private home builders, spanning across 13 states and 19 markets. We are committed to delivering the best in Design, Choice and Service with floor plans to suit our Customers’ unique lifestyles. And with a reputation for exceptional Customer Satisfaction and high-quality craftsmanship, our Customers can enjoy knowing their home was thoughtfully designed and expertly crafted. It’s why more than 115,000 delighted Homeowners have chosen David Weekley Homes to make their new home dreams come true! Trust in one of the nation’s most award-winning home builders and start building your dream David Weekley home today!
This listing's information was verified with the builder for accuracy 2 days ago
Wayman Plan by David Weekley Homes
saved to favorites!
To see all the homes you’ve saved, visit the My Favorites section of your account.
Discover More Great Communities
Select additional listings for more information
We're preparing your brochure
You're now connected with David Weekley Homes. We'll send you more info soon.
The brochure will download automatically when ready.
Brochure downloaded successfully
Your brochure has been saved. You're now connected with David Weekley Homes, and we've emailed you a copy for your convenience.
The brochure will download automatically when ready.
Way to Go!
You’re connected with David Weekley Homes.
The best way to find out more is to visit the community yourself!