Willow Plan
Ready to build
111 Sweetbay Tree Drive, Wendell NC 27591
Home by Taylor Morrison

Last updated 1 day ago
The Price Range displayed reflects the base price of the homes built in this community.
You get to select from the many different types of homes built by this Builder and personalize your New Home with options and upgrades.
3 BR
2.5 BA
2 GR
1,883 SQ FT

Magnolia Townes Exteriors 1/32
Special offers
Explore the latest promotions at Magnolia Townes. Contact Taylor Morrison to learn more!
Conventional Fixed Rate 4.99% / 5.07% APR
Overview
1 Half Bathroom
2 Stories
Dining Room
Loft
Primary Bed Upstairs
Single Family
Willow Plan Info
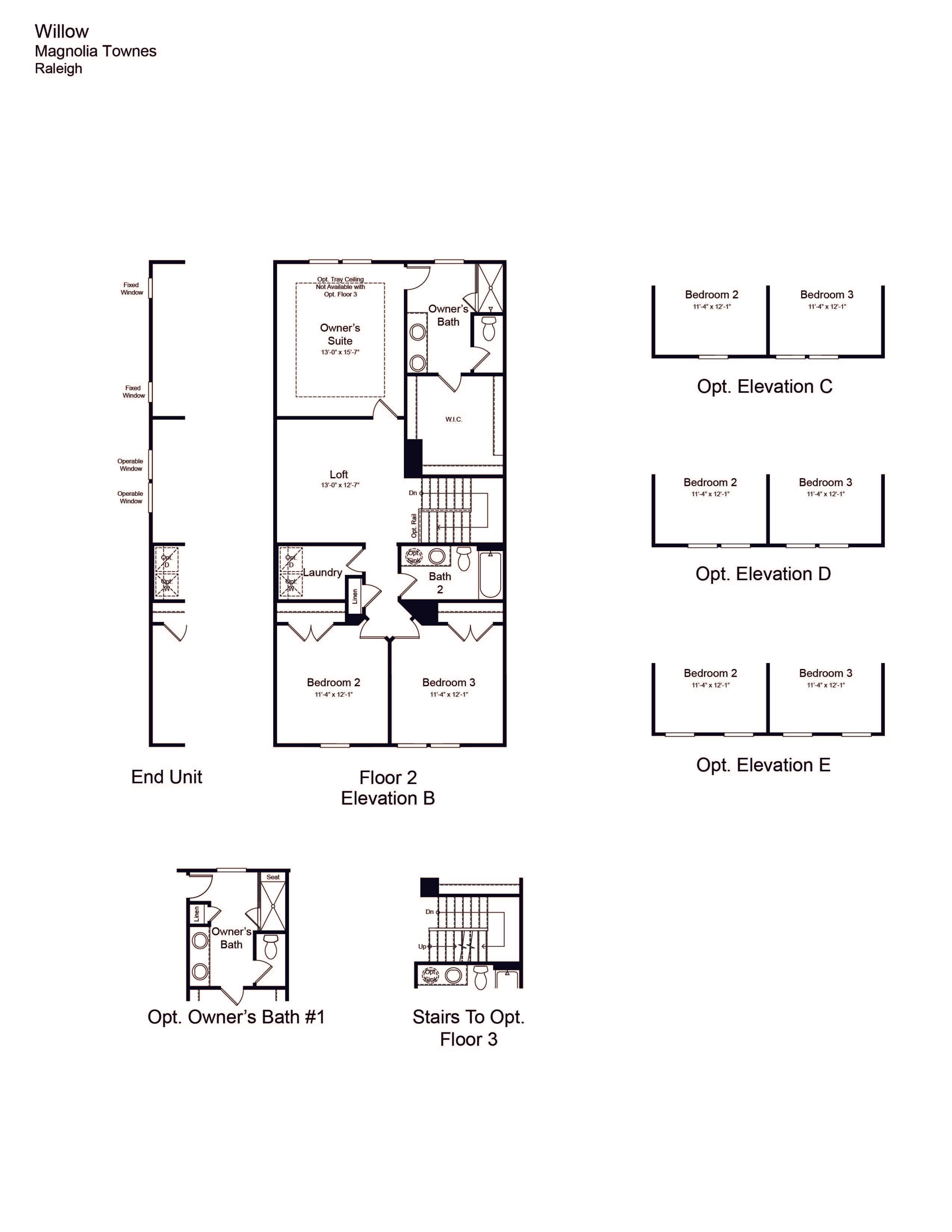
The two-story Willow floor plan is an open concept, airy and bright home inspired by casual and stylish living. Start at the inviting Foyer that flows effortlessly into the gathering room, kitchen and dining area. The powder room is conveniently located near the stairwell and across from the owner’s entry from the attached two-car garage. The second floor offers a generous size owner’s suite at the rear of the home along with two secondary bedrooms, a secondary bath, a spacious and centrally located laundry room as well as an open Loft. This end-unit townhome features 3 bedrooms and 2.5 baths. The owner’s suite is a stunning private oasis with dual vanities and a walk-in-closet. The two-car garage is the perfect complement to this thoughtful floor plan. Additional structural options are available throughout the home, including: •Outdoor covered living area •Owner’s Bath One offering a large shower with seat •Tray ceiling at Owner’s bedroom
Floor plan center
View floor plan details for this property.
- Floor Plans
- Exterior Images
- Interior Images
- Other Media
Explore custom options for this floor plan.
- Choose Option
- Include Features
Neighborhood
Community location & sales center
111 Sweetbay Tree Drive
Wendell, NC 27591
111 Sweetbay Tree Drive
Wendell, NC 27591
888-795-4437
From I-540 Head southeast on I-540 E. Take exit 26B on the left to merge onto I-87/US-264 E/US-64 E toward I-87 N/Rocky Mt/Wilson. Use the right 2 lanes to take exit 11 for Wendell Falls Pkwy. Keep right at the fork and merge onto Wendell Falls Pkwy. Continue straight on Wendell Falls Pkwy. Turn right onto 1st St. Turn right onto S Cypress St. Turn right onto W Haywood St. Magnolia Townes will be on the left.
Nearby schools
Wake County Schools
Middle school. Grades 6 to 8.
- Public school
- Teacher - student ratio: 1:13
- Students enrolled: 719
3409 N 97 Hwy, Wendell, NC, 27591
919-365-1667
Actual schools may vary. We recommend verifying with the local school district, the school assignment and enrollment process.
Amenities
Home details
Ready to build
Build the home of your dreams with the Willow plan by selecting your favorite options. For the best selection, pick your lot in Magnolia Townes today!
Community & neighborhood
Health and fitness
- Trails
Community services & perks
- HOA Fees: $160/month
Neighborhood amenities
Mr G's Market
0.58 mile away
390 E Third St
Interfood Plaza Supermarket
1.11 miles away
2971 Wendell Blvd
Food Lion
1.52 miles away
2837 Wendell Blvd
Publix
3.55 miles away
2257 Wendell Falls Pkwy
Carlie C's IGA
4.19 miles away
506 W Gannon Ave
Pams Cake Pops
0.42 mile away
227 Forest Ln
Carter's Baking Company
0.58 mile away
31 N Main St
Blissfull Belly Bakery
2.82 miles away
605 Groveview Wynd
Walmart Bakery
5.79 miles away
841 E Gannon Ave
Little Doodles Play Cafe
0.44 mile away
11 W Third St
Prim Pizza
0.48 mile away
9 N Main St
Agave Mexican Bar & Grill
0.58 mile away
18 W Third St
Aubrey's and Peedie's Grill
0.58 mile away
38 N Main St
Bojangles'
0.58 mile away
2236 Wendell Falls Pkwy
41 North Coffee
0.58 mile away
41 N Main St
Starbucks
0.58 mile away
6008 Taylor Rd
9Bar Coffeehouse
6.46 miles away
411 Athletic Club Blvd
Dunkin'
6.79 miles away
7137 Knightdale Blvd
Krispy Kreme Doughnuts
7.52 miles away
6727 Knightdale Blvd
Kannon's Clothing-Raleigh LLC
0.49 mile away
10 N Main St
Cheryl King Couture
0.55 mile away
623 Commander Dr
Bella Mar Boutique
0.58 mile away
14 N Main St
Family Dollar
0.58 mile away
2920 Wendell Blvd
Family Dollar
3.99 miles away
601 W Gannon Ave
Wine 101
0.49 mile away
17 N Main St
Brindisi Wine
0.49 mile away
10 N Main St
Agave Mexican Bar & Grill
0.58 mile away
18 W Third St
Lick Sports Bar & Lounge
2.75 miles away
2901 NC 97 Hwy
The Depot on First
6.00 miles away
608 N 1st Ave
Please note this information may vary. If you come across anything inaccurate, please contact us.
From start to finish, we create a seamless and inspired homebuilding experience for our homebuyers because we understand that your home is the most important home we can build. At Taylor Morrison, we work to earn your trust by providing the resources, support and deep industry experience to inspire you, and help you make educated decisions about your most important purchase. It’s this trust that earned Taylor Morrison the recognition of being America’s Most Trusted® Home Builder for 10 years in a row. We approach each home with a discerning eye, ensuring we select locations and amenities that fit for our homebuyers’ lifestyles. We want your home to be a place where you create a lifetime of lasting memories. With more than 100 years of experience building a lifetime of memories for our homebuyers, you can rest assured we’ll build the right home for you.
Take the next steps toward your new home
Willow Plan by Taylor Morrison
saved to favorites!
To see all the homes you’ve saved, visit the My Favorites section of your account.
Discover More Great Communities
Select additional listings for more information
We're preparing your brochure
You're now connected with Taylor Morrison. We'll send you more info soon.
The brochure will download automatically when ready.
Brochure downloaded successfully
Your brochure has been saved. You're now connected with Taylor Morrison, and we've emailed you a copy for your convenience.
The brochure will download automatically when ready.
Way to Go!
You’re connected with Taylor Morrison.
The best way to find out more is to visit the community yourself!