Yosemite Plan
Ready to build
Bennett CO 80102
Home by LGI Homes
The Price Range displayed reflects the base price of the homes built in this community.
You get to select from the many different types of homes built by this Builder and personalize your New Home with options and upgrades.
5 BR
3 BA
2 GR
2,166 SQ FT

The Yosemite by LGI Homes 1/13
Special offers
Explore the latest promotions at Bennett Ranch. Contact LGI Homes to learn more!
Builder Paid Closing Costs!
Save Up to $50,000 on Select Homes Now!
Overview
2 Car Garage
2 Stories
2166 Sq Ft
3 Bathrooms
5 Bedrooms
Breakfast Area
Dining Room
Family Room
Green Construction
Porch
Primary Bed Upstairs
Single Family
Yosemite Plan Info
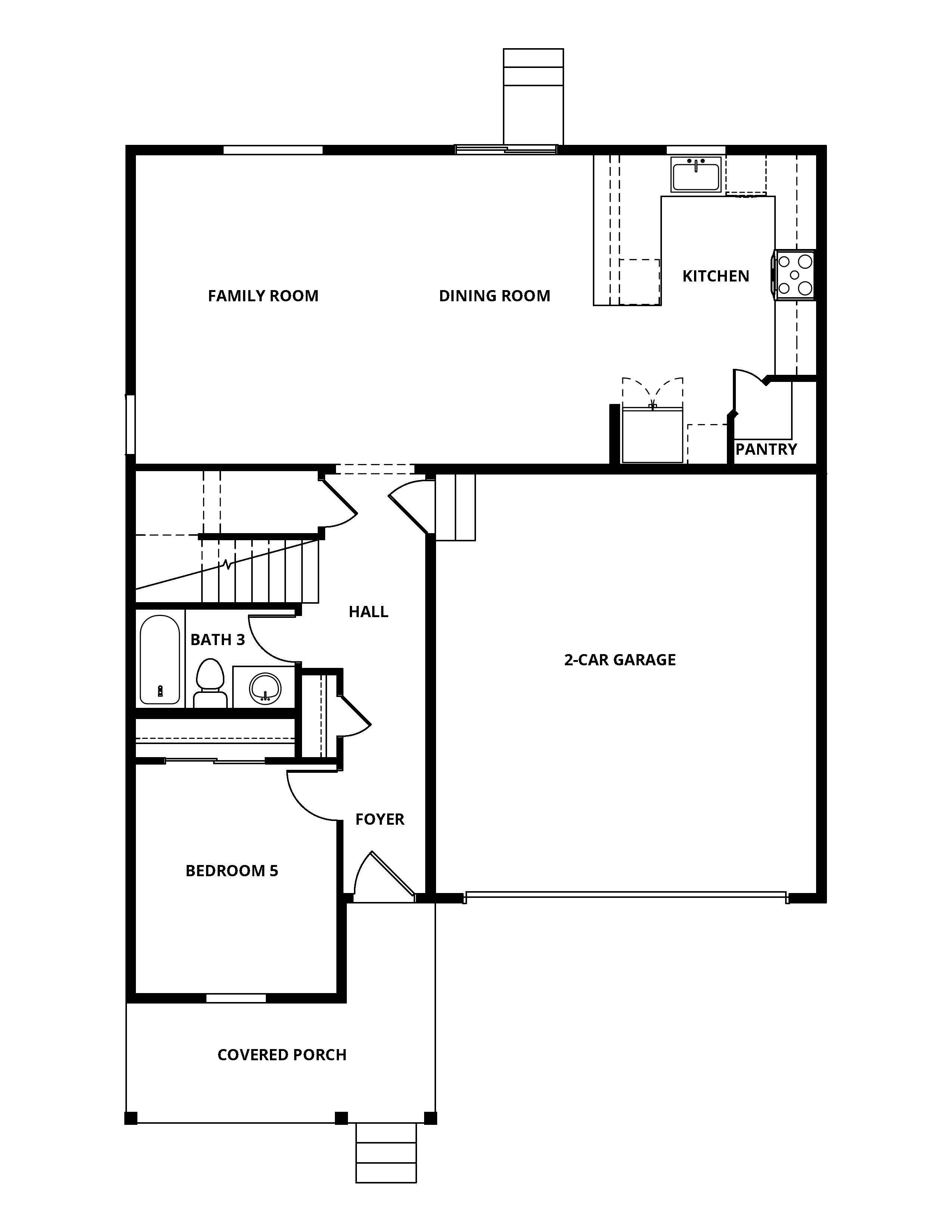
Those who love entertaining family and friends will appreciate the open and inviting layout of this beautiful home. It boasts a spacious design with a seamless flow between the living room, modern kitchen, and dining room. The upgraded kitchen features a beautiful breakfast bar with polished quartz countertops and ample cabinet storage, making it a perfect spot for gatherings. The upstairs primary suite provides a tranquil retreat with a serene bedroom and a luxurious bathroom, complete with a glass-enclosed shower, a stunning dual sink vanity, and a walk-in closet. Additionally, the home includes another 3 more bedrooms upstairs and one downstairs, another 2 bathrooms and a large laundry room for added convenience.
Floor plan center
View floor plan details for this property.
- Floor Plans
- Exterior Images
- Interior Images
- Other Media
Neighborhood
Community location & sales center
3632 Morgan Way
Bennett, CO 80102
3632 Morgan Way
Bennett, CO 80102
888-884-5180
Schools near Bennett Ranch
- Bennett School District No. 29j
Actual schools may vary. Contact the builder for more information.
Amenities
Home details
Ready to build
Build the home of your dreams with the Yosemite plan by selecting your favorite options. For the best selection, pick your lot in Bennett Ranch today!
Community & neighborhood
Local points of interest
- King Soopers
- Lucky Strike Lanes
- Strasburg Community Park
- Great Plains Park
- Plains Conservation Center
- Trupp Park
Health and fitness
- Quint Valley Golf Club
- Kiowa Creek Sporting Club
- Aurora Sports Park
- Trails
Community services & perks
- HOA fees: Unknown, please contact the builder
- Bennett Park & Recreation District
- Arapahoe County Fairgrounds Event Center
- Playground
- Park
Neighborhood amenities
La Mexicanita
0.81 mile away
100 S 1st St
King Soopers
1.62 miles away
1045 S 1st St
Happy Burrito Mexican Restaurant
0.50 mile away
695 Palmer Ave
Woody's Wings 2 Inc
0.62 mile away
670 E Colfax Ave
Domino's
0.64 mile away
550 E Colfax Ave
La Mexicanita
0.81 mile away
100 S 1st St
High Plains Diner
0.97 mile away
100 Bennett Ave
Bennett Nutrition
0.57 mile away
475 Palmer Ave
Starbucks
1.62 miles away
1045 S 1st St
Strasburg Espress LLC
5.25 miles away
56551B E Colfax Ave
Rookie's
5.67 miles away
1323 Monroe St
Lulu's Inn
9.80 miles away
33355 US Highway 36
Please note this information may vary. If you come across anything inaccurate, please contact us.
Here at LGI Homes, we know that we're a new home builder that is different. Building homes with great value and great prices in excellent locations, such as Dallas-Fort Worth, Houston, San Antonio, Austin, Phoenix, Tucson, Albuquerque, Tampa, Orlando, Charlotte, Denver and Atlanta. In every one of our new home communities, we have assembled a team of dedicated home buying professionals who are ready and able to walk you through the home buying process, and help you find the perfect new home. Contact us now, and let us start you on your journey toward homeownership. You’ll be glad you did!
TrustBuilder reviews
Take the next steps toward your new home
Yosemite Plan by LGI Homes
saved to favorites!
To see all the homes you’ve saved, visit the My Favorites section of your account.
Discover More Great Communities
Select additional listings for more information
We're preparing your brochure
You're now connected with LGI Homes. We'll send you more info soon.
The brochure will download automatically when ready.
Brochure downloaded successfully
Your brochure has been saved. You're now connected with LGI Homes, and we've emailed you a copy for your convenience.
The brochure will download automatically when ready.
Way to Go!
You’re connected with LGI Homes.
The best way to find out more is to visit the community yourself!