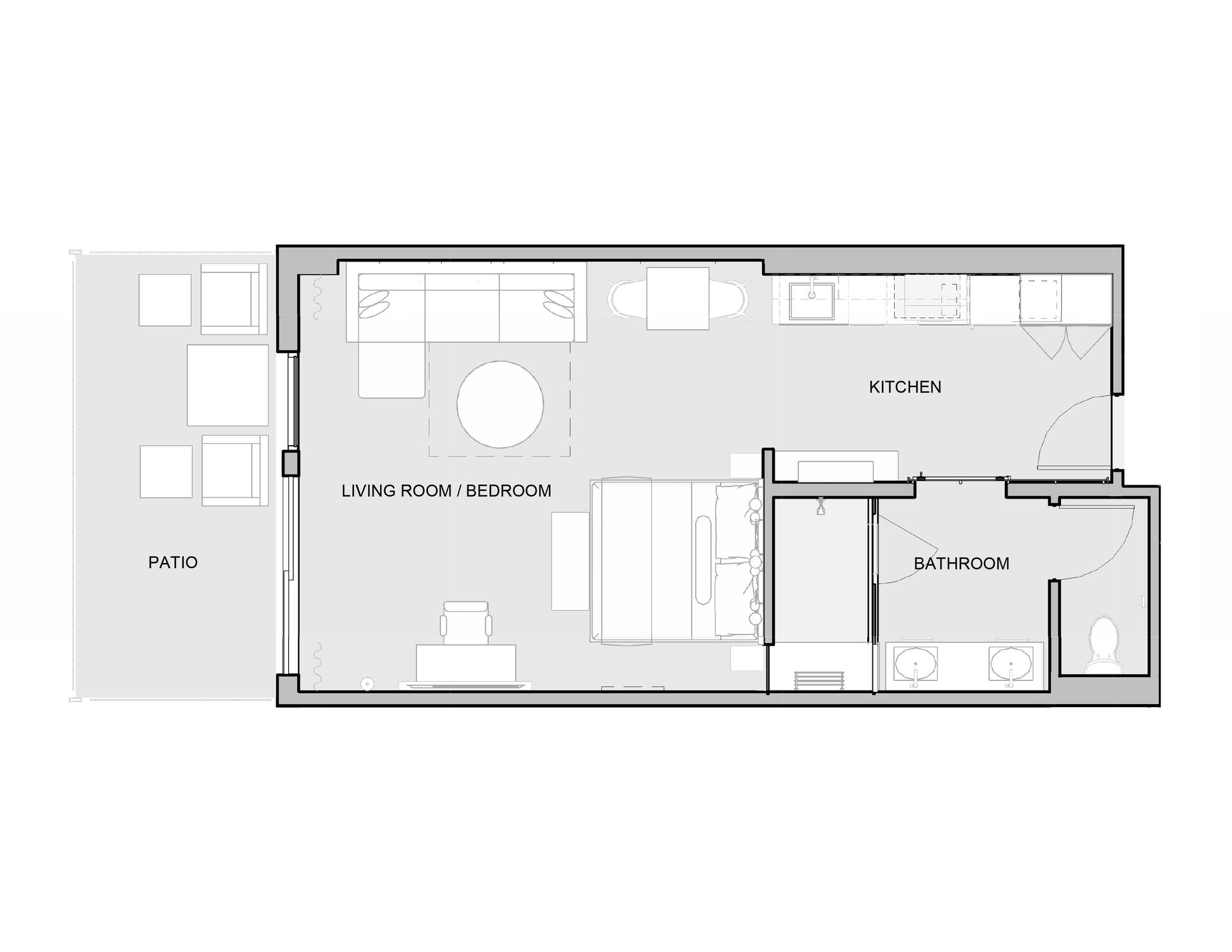
1500 E Black Desert Dr (Resort Center King Floor Plan)
Move-In Ready
Ivins, UT 84738
Home by Black Desert Resort
The Price Range displayed reflects the base price of the homes built in this community.
You get to select from the many different types of homes built by this Builder and personalize your New Home with options and upgrades.

King B Floor Plan 1/1
Overview
1 Bathroom
1 Story
Breakfast Area
Living Room
Multi Family
Patio
1500 E Black Desert Dr (Resort Center King Floor Plan) Info
Discover your piece of paradise at Black Desert Resort. Luxurious living space, that is fully furnished and appointed as a turn-key residence that boasts a spacious floor plan, Kitchenette with Wolf, Sub Zero and Cove appliances, pull-out couch in the living area for extra family or friends and Membership to the Black Desert Club giving you access to all of the world-class amenities. One of only three golf courses in the United States to host both a PGA Tour FedEx Cup and LPGA Official Event tournaments. Black Desert is creating a sanctuary where you can unwind and connect amidst stunning scenery.
Floor plan center
View floor plan details for this property.
- Floor Plans
- Exterior Images
- Interior Images
- Other Media
Neighborhood
Community location & sales center
1500 E Black Desert Drive Ivins
Ivins, UT 84738
1500 E Black Desert Drive Ivins
Ivins, UT 84738
888-445-3883
Schools near The Resort Center
- Washington District
Actual schools may vary. Contact the builder for more information.
Amenities
Home details
Available now
This newly-built home at 1500 E Black Desert Dr is ready for you to move in today.
Community & neighborhood
Local points of interest
- Latitude (Modern American Cuisine)
- 20th Hole (Sports Bar)
- Basalt (Steakhouse)
- Flo (Lobby Bar)
- Lava Love (Coffee Bar)
- Views
- MountainViews
Social activities
- FirePit
Health and fitness
- Golf Course
- Pool
- Trails
- FitnessCenter
- GolfSimulator
- HotTub
- OutdoorPool
- Pickleball
- Sauna
- YogaStudio
Community services & perks
- HOA fees: Unknown, please contact the builder
- Park
- Garden
- SplashPad
- Waterpark
Take the next steps toward your new home
1500 E Black Desert Dr (Resort Center King Floor Plan) by Black Desert Resort
saved to favorites!
To see all the homes you’ve saved, visit the My Favorites section of your account.
Discover More Great Communities
Select additional listings for more information
We're preparing your brochure
You're now connected with Black Desert Resort. We'll send you more info soon.
The brochure will download automatically when ready.
Brochure downloaded successfully
Your brochure has been saved. You're now connected with Black Desert Resort, and we've emailed you a copy for your convenience.
The brochure will download automatically when ready.
Way to Go!
You’re connected with Black Desert Resort.
The best way to find out more is to visit the community yourself!