4230 Zayan Dr (Republic)
Under Construction
Sherman, TX 75090
Home by D.R. Horton
Last updated 21 hours ago
The Price Range displayed reflects the base price of the homes built in this community.
You get to select from the many different types of homes built by this Builder and personalize your New Home with options and upgrades.
4 BR
3.5 BA
2 GR
2,448 SQ FT
Claim this listing to update information, get access to exclusive tools and more!

Floor Plan 1/1
Overview
1 Half Bathroom
2 Car Garage
2 Stories
2448 Sq Ft
3 Bathrooms
4 Bedrooms
Single Family
4230 Zayan Dr (Republic) Home Info
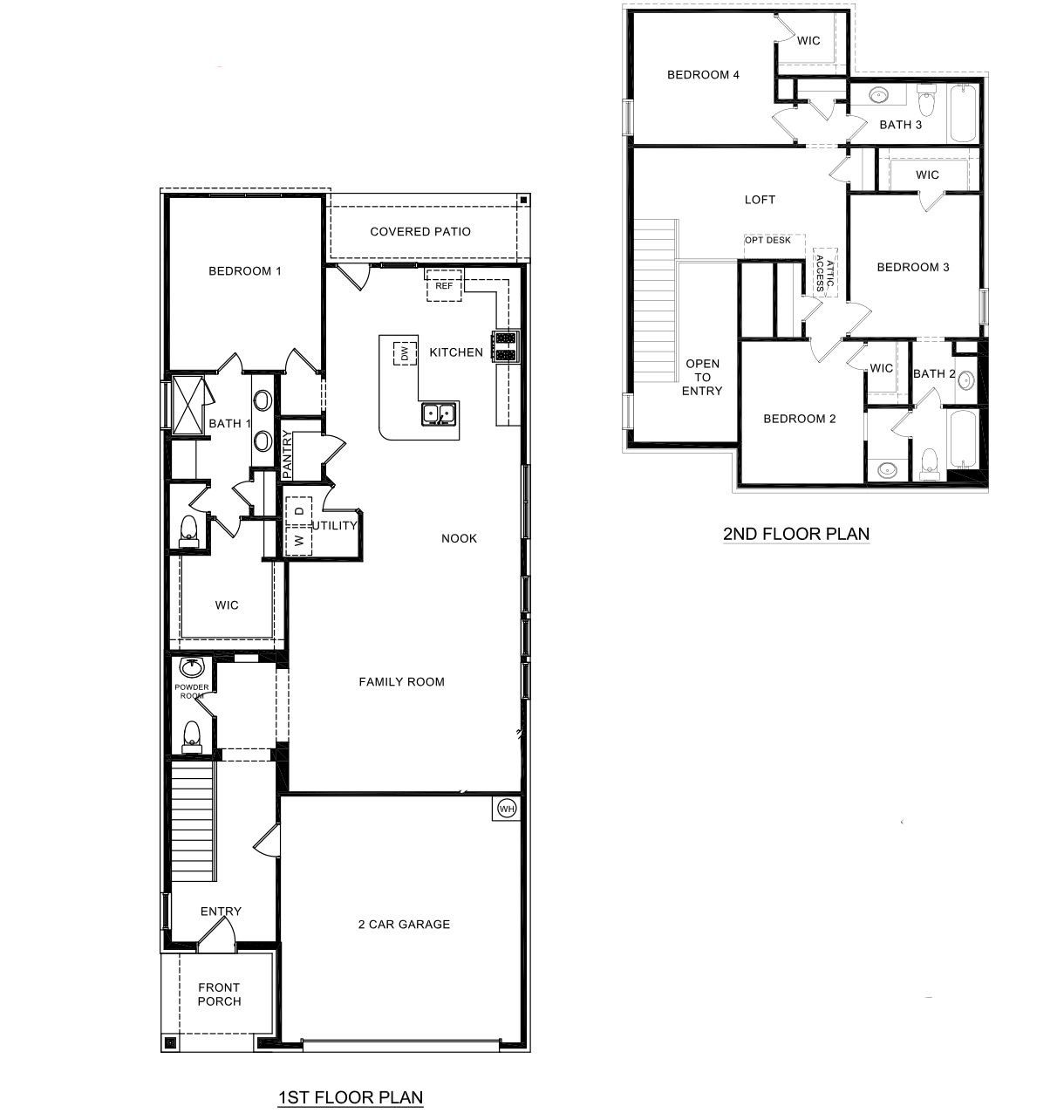
The 2445 Republic floorplans is one of our two-story floorplans featured in our Bel Air Village community in Sherman, Texas. With 2 modern farm house inspired exteriors to choose from, the Republic plan is sure to turn heads. Inside this 4 bedroom, 3.5 bathroom home, you'll find approximately 2,448 square feet of comfortable living. The living area is an open concept, where your kitchen, living, and dining areas blend seamlessly into a space perfect for everyday living and entertaining. The kitchen features cabinets with hidden hinges and crown molding, hard surface countertops, an island, and stainless steel dishwasher and range, which are sure to both turn heads and make meal prep easy. In every bedroom you'll have carpeted floors and a closet in each room. Whether these rooms become bedrooms, office spaces, or other bonus rooms, there is sure to be comfort. The primary bedroom has its own attached bathroom that features a walk-in closet and all the space you need to get ready in the morning. Featuring an oversized shower and name brand laminated wood plank flooring. Contact us today and find your home at Bel Air Village. Photos shown here may not depict the specified home and features. Elevations, exterior/ interior colors, options, available upgrades that require an additional charge, and standard features will vary in each community and subject change without notice. Call for details.
Floor plan center
View floor plan details for this property.
- Floor Plans
- Exterior Images
- Interior Images
- Other Media
Neighborhood
Community location & sales center
1310 Beach Blvd
Sherman, TX 75090
1310 Beach Blvd
Sherman, TX 75090
888-790-3488
Schools near Bel Air Village
- Sherman Independent School District
- Dillingham Intermediate School
- Piner Middle School
- Sherman High School
Actual schools may vary. Contact the builder for more information.
Amenities
Home details
Now building
This home is currently under construction at 4230 Zayan Dr and will soon be available for move-in at Bel Air Village. Contact D.R. Horton today to lock in your options!
Nearby schools
Sherman Independent School District
Elementary-Middle school. Grades 5 to 6.
- Public school
- Teacher - student ratio: 1:13
- Students enrolled: 1097
1701 Gallagher Dr, Sherman, TX, 75090
903-891-6495
Middle school. Grades 7 to 8.
- Public school
- Teacher - student ratio: 1:13
- Students enrolled: 818
402 W Pecan St, Sherman, TX, 75090
903-891-6470
High school. Grades 9 to 12.
- Public school
- Teacher - student ratio: 1:14
- Students enrolled: 2155
2201 E Lamar St, Sherman, TX, 75090
903-891-6440
Actual schools may vary. We recommend verifying with the local school district, the school assignment and enrollment process.
Neighborhood amenities
Whitney Food Store
2.41 miles away
815 E Odneal St
La Michoacana Meat Market
3.43 miles away
1000 N Travis St
Good to Go Casserole LLC
3.54 miles away
2525 FM 697
One Stop Sherman
3.82 miles away
1329 N Grand Ave
Save-A-Lot
3.97 miles away
1733 Texoma Pkwy
Holmes Family Rustic Kitchen
2.44 miles away
910 S Hub St
Sunshine & Sprinkles
3.06 miles away
1417 W Houston St
Mom's Bakery
4.00 miles away
1703 N Woods St
Albertsons Bakery
4.02 miles away
100 E Taylor St
Kroger Bakery
4.13 miles away
1820 N Loy Lake Rd
Pie Five Pizza
0.48 mile away
3707 S US Highway 75
Jack in the Box
0.64 mile away
100 W FM 1417
M D Burgers N' Stuff
1.02 miles away
2400 S Travis St
Downtown Sherman Grilled CHS
1.54 miles away
1718 S Elm St
Country Hill Honey
2.25 miles away
1200 Ridgeview Dr
Frut-Titas
2.52 miles away
513 S Walnut St
Southern Maid Donuts
3.00 miles away
1725 E Lamar St
Bean Me Up Coffehouse & Bistro
3.04 miles away
115 S Travis St Inside Kelly Sq
Cj's
3.33 miles away
818 N Travis St
Southern Maid Donuts
3.99 miles away
1712 N Loy Lake Rd
Rain Lilies Boutique LLC
2.50 miles away
2605 Luella Rd
Chandelier's Boutique
2.76 miles away
330 W Lamar St
Sandi's Boutique
2.78 miles away
115 S Travis St
Risk Shoe Store & Shoe Repair
2.82 miles away
102 S Crockett St
Chandeliers Boutique LLC
2.84 miles away
100 N Travis St
Dorothy's Bumper Club
3.96 miles away
4401 W Houston St
Rendevous Club
4.37 miles away
2111 Texoma Pkwy
Mt Everest Grill & Bar
4.39 miles away
2119 Texoma Pkwy
Cellarman's Pub & Brewery
4.47 miles away
2130 Texoma Pkwy
Chili's
4.94 miles away
2809 N US Highway 75
Please note this information may vary. If you come across anything inaccurate, please contact us.
Builder details
D.R. Horton
In 1978, D.R. Horton broke ground on our first home in Fort Worth, Texas. Since that day, the company has defined its success not by bricks and mortar, but by the satisfaction of the families that make our houses their homes. Our foundation is a single, guiding principle: a value-first dedication to the individual needs of each and every one of our nation’s homebuyers.
From first-time homebuyers to empty nesters, our family of brands provides a home for every stage in life. Our highly-trained, market experts are where you want to live, from New Jersey to Hawaii, providing unique, personalized services tailored to your individual needs. But the real value comes from the quality construction we put into every home, and the peace of mind that comes with a premium-backed warranty from America’s Number One Homebuilder.
We’ve come a long way, and while more people choose our family of brands over any other builder in the country, we never forget the most important thing of all – the families that choose us for their place to call home.
So continue to live out those dreams, America, and know we’ll be here for you every step of the way.
More new homes in Sherman, Texas
4230 Zayan Dr (Republic) by D.R. Horton
saved to favorites!
To see all the homes you’ve saved, visit the My Favorites section of your account.
Discover More Great Communities
Select additional listings for more information
Way to Go!
An agent will be in contact soon!
