669 Old Waverly Way (The 1998)
Under Construction
Eagle Point, OR 97524
Home by Holt Homes
at Quail Run

Last updated 2 days ago
The Price Range displayed reflects the base price of the homes built in this community.
You get to select from the many different types of homes built by this Builder and personalize your New Home with options and upgrades.
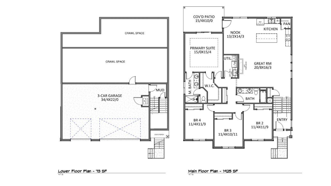
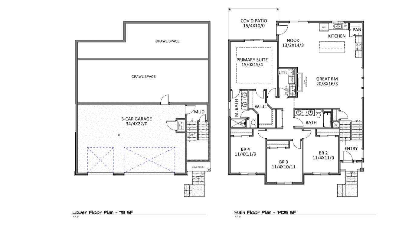
4 BR
2 BA
3 GR
1,998 SQ FT

Exterior 1/2
Overview
1998 Sq Ft
2 Bathrooms
2 Stories
3 Car Garage
4 Bedrooms
Single Family
669 Old Waverly Way (The 1998) Home Info
Only one set of stairs away from this brilliant single level living home!This 1,998 square foot plan features four full bedrooms with two bathrooms, spacious laundry room, and walk in pantry. Mornings are a piece of cake with three bedrooms sharing a full bathroom with double sinks (no more fighting over who gets to use the sink while brushing teeth!). Enjoy coffee in the dining nook overlooking the backyard, or step outside yourself with quick patio access. Entertaining family and friends is a breeze as the open great room provides ample space for large, comfy furniture and enough room to roam back and forth to the kitchen island and graze on snacks while watching the big game. All this and a standard 3 car garage makes for a quality built home for by Holt, just for you.*
Floor plan center
View floor plan details for this property.
- Floor Plans
- Exterior Images
- Interior Images
- Other Media
Neighborhood
Community location & sales center
173 Alder Street
Eagle Point, OR 97524
173 Alder Street
Eagle Point, OR 97524
888-856-4401
https://maps.app.goo.gl/6Swv4dMmCVrG8J5R7
Nearby schools
Eagle Point School District 9
Elementary school. Grades KG to 5.
- Public school
- Students enrolled: 460
185 E Main St, Eagle Point, OR, 97524
541-830-1225
Middle school. Grades 6 to 8.
- Public school
- Teacher - student ratio: 1:21
- Students enrolled: 393
477 Reese Creek Rd, Eagle Point, OR, 97524
541-830-1250
High school. Grades 9 to 12.
- Public school
- Teacher - student ratio: 1:19
- Students enrolled: 999
203 N Platt Ave, Eagle Point, OR, 97524
541-830-1300
Medford School District
Elementary-Middle school. Grades KG to 6.
- Public school
- Teacher - student ratio: 1:15
- Students enrolled: 322
713 Summit Ave, Medford, OR, 97501
541-842-3770
Actual schools may vary. We recommend verifying with the local school district, the school assignment and enrollment process.
Amenities
Home details
Now building
This home is currently under construction at 669 Old Waverly Way and will soon be available for move-in at Quail Run. Contact Holt Homes today to lock in your options!
Community & neighborhood
Local points of interest
- Views
Health and fitness
- Golf Course
Community services & perks
- HOA Fees: $52/month
- Playground
- Park
Neighborhood amenities
Smart Choice Market
0.21 mile away
223 W Jackson St
Minute Markets
0.32 mile away
843 W Jackson St
Downtown Market Co LLC
0.72 mile away
123 W Main St
El Gallo Mexican Supermarket
0.73 mile away
2122 W Main St
8th & Grage Street Market
0.79 mile away
103 S Grape St
Nothing Bundt Cakes
0.74 mile away
181 Rossanley Dr
The Vitamin Shoppe
0.85 mile away
61 Rossanley Dr
Albertsons Bakery
0.87 mile away
113 Ross Ln N
Delish LLC
0.94 mile away
543 Medford Ctr
Cookie Connection
0.98 mile away
1600 N Riverside Ave
Sweet Rewards
0.10 mile away
512 Mary Pl
Dutch Bros Coffee
0.27 mile away
1005 Summit Ave
Wharf Restaurant
0.29 mile away
827 W Jackson St
Gyro King LLC
0.35 mile away
915 W McAndrews Rd
La Reyna Monarca
0.41 mile away
940 N Central Ave
Dutch Bros Coffee
0.27 mile away
1005 Summit Ave
Snoball Treats
0.54 mile away
711 N Central Ave
Starbucks
0.54 mile away
42 Rossanley Dr
Sugar & Spice Coffee & Fruit Shop
0.59 mile away
1605 W Main St
Outsider Coffee
0.62 mile away
232 N Central Ave
Bloom Skin Boutique
0.59 mile away
345 N Bartlett St
Rogue Wear
0.61 mile away
307 N Bartlett St
PAPAYA! Living
0.70 mile away
582 Parsons Dr
Legionnaire Army
0.72 mile away
588 Parsons Dr
DICK'S Sporting Goods
0.72 mile away
293 Rossanley Dr
Shiki Sushi Bar and Thai Restaurant
0.56 mile away
17 W 4th St
Mr Smith's Sports Bar
0.64 mile away
401 E Jackson St
Beijing House
0.68 mile away
510 N Riverside Ave
4 Daughters Irish Pub
0.69 mile away
126 W Main St
King Wah
0.73 mile away
1182 Court St
Please note this information may vary. If you come across anything inaccurate, please contact us.
For more than three decades, Holt Homes has built new construction homes for families in Oregon and Southwest Washington. The quality and experience of our people, the ease and efficiency of our approach, and the livability of our communities work hand-in-hand to make Holt Homes the largest locally-grown home builder in the region.
Our purpose is to create better places to live in the Pacific Northwest. Our approach to working with you is simple: provide a guiding hand through each step of the process. Make it friendly and easy to understand. Offer better building solutions in partnership with the best area tradespeople and suppliers. Then to build the right home with the materials and options that are right for this region. Most importantly, to build the home that is right for you. We believe that a home built right has these four ingredients: good land, good people, good service, and good value.
What makes a home uniquely yours? The details. The extras, features and touches that fill out your creative vision. As a production homebuilder we work to always balance pricing with optionality. When you buy a home from Holt, you can always leave your personal mark.
Take the next steps toward your new home
669 Old Waverly Way (The 1998) by Holt Homes
saved to favorites!
To see all the homes you’ve saved, visit the My Favorites section of your account.
Discover More Great Communities
Select additional listings for more information
We're preparing your brochure
You're now connected with Holt Homes. We'll send you more info soon.
The brochure will download automatically when ready.
Brochure downloaded successfully
Your brochure has been saved. You're now connected with Holt Homes, and we've emailed you a copy for your convenience.
The brochure will download automatically when ready.
Way to Go!
You’re connected with Holt Homes.
The best way to find out more is to visit the community yourself!